- Équations de base du calcul hydraulique d'un gazoduc
- Vidéo : Fondamentaux du calcul hydraulique des gazoducs
- Comment travailler dans EXCEL
- Saisie des données initiales
- Formules et algorithmes
- Enregistrement des résultats
- Exemple d'Alexandre Vorobyov
- Calcul du diamètre des tuyaux du système de chauffage
- Calcul de la puissance du système de chauffage
- Vitesse du liquide de refroidissement dans le système
- Calcul du diamètre du tuyau du système de chauffage
- Préparation du calcul
- Notation et ordre d'exécution
- Détermination du diamètre du tuyau
- Puissance du générateur de chaleur
- Calcul de la puissance thermique du système de chauffage
- Calcul thermique de la maison
- Calcul thermotechnique prenant en compte les déperditions de chaleur de la maison
- Comment calculer la puissance d'une chaudière à gaz pour la superficie de la maison?
- Comment calculer la puissance de la chaudière de chauffage par le volume de la maison ?
- Comment calculer la puissance d'une chaudière avec un circuit d'eau chaude ?
- Quelle est la meilleure façon de calculer - par surface ou par volume ?
- Combien coûte le kilowatt "supplémentaire" ?
- Nous vous conseillons également de consulter :
- Concernant les travaux préliminaires.
- Consommation de liquide de refroidissement
- Calcul hydraulique du système de chauffage - exemple de calcul
- Consommation de liquide de refroidissement
- …et pendant toute la durée de vie du système
- Calcul du volume d'eau et de la capacité du vase d'expansion
- Outils dans le menu principal de Valtec
- Conclusions et vidéo utile sur le sujet
Équations de base du calcul hydraulique d'un gazoduc
Pour calculer le mouvement du gaz dans les tuyaux, les valeurs du diamètre du tuyau, de la consommation de carburant et de la perte de charge sont prises. Calculé en fonction de la nature du mouvement. Avec laminar - les calculs sont effectués strictement mathématiquement selon la formule:
Р1 – Р2 = ∆Р = (32*μ*ω*L)/D2 kg/m2 (20), où :
- ∆Р – kgm2, perte de charge due au frottement ;
- ω – m/s, vitesse du carburant ;
- D - m, diamètre du pipeline ;
- L - m, longueur du pipeline ;
- μ est kg sec/m2, viscosité du fluide.
Avec un mouvement turbulent, il est impossible d'appliquer des calculs mathématiques précis en raison du caractère aléatoire du mouvement. Par conséquent, des coefficients déterminés expérimentalement sont utilisés.
Calculé selon la formule :
Р1 – Р2 = (λ*ω2*L*ρ)/2g*D (21), où :
- P1 et P2 sont les pressions au début et à la fin de la canalisation, kg/m2 ;
- λ est le coefficient de traînée sans dimension ;
- ω – m/sec, la vitesse moyenne du flux de gaz sur la section de conduite ;
- ρ – kg/m3, densité du combustible ;
- D - m, diamètre du tuyau ;
- g – m/sec2, accélération due à la gravité.
Vidéo : Fondamentaux du calcul hydraulique des gazoducs
Une sélection de questions
- Mikhail, Lipetsk — Quels disques pour la coupe du métal faut-il utiliser ?
- Ivan, Moscou — Qu'est-ce que le GOST de la tôle d'acier laminée ?
- Maksim, Tver — Quels sont les meilleurs racks pour le stockage de produits métalliques laminés ?
- Vladimir, Novossibirsk — Que signifie le traitement des métaux par ultrasons sans l'utilisation de substances abrasives ?
- Valery, Moscou — Comment forger un couteau à partir d'un roulement de vos propres mains?
- Stanislav, Voronezh — Quel équipement est utilisé pour la production de conduits d'air en acier galvanisé ?
Comment travailler dans EXCEL
L'utilisation de feuilles de calcul Excel est très pratique, car les résultats du calcul hydraulique sont toujours réduits à une forme tabulaire. Il suffit de déterminer la séquence d'actions et de préparer des formules exactes.
Saisie des données initiales
Une cellule est sélectionnée et une valeur est saisie. Toutes les autres informations sont simplement prises en compte.
| Cellule | Évaluer | Sens, désignation, unité d'expression |
|---|---|---|
| D4 | 45,000 | Consommation d'eau G en t/h |
| D5 | 95,0 | Température d'entrée étain en °C |
| D6 | 70,0 | Température de sortie tout en °C |
| D7 | 100,0 | Diamètre intérieur d, mm |
| D8 | 100,000 | Longueur, L en m |
| D9 | 1,000 | Rugosité équivalente du tube ∆ en mm |
| D10 | 1,89 | Le montant des cotes résistances locales - Σ(ξ) |
- la valeur dans D9 est extraite du répertoire ;
- la valeur en D10 caractérise la résistance au niveau des soudures.
Formules et algorithmes
Nous sélectionnons les cellules et entrons dans l'algorithme, ainsi que dans les formules de l'hydraulique théorique.
| Cellule | Algorithme | Formule | Résultat | Valeur du résultat |
|---|---|---|---|---|
| D12 | !ERREUR! D5 ne contient ni nombre ni expression | tav=(étain+tout)/2 | 82,5 | Température moyenne de l'eau tav en °C |
| D13 | !ERREUR! D12 ne contient ni nombre ni expression | n=0,0178/(1+0,0337*tav+0,000221*tav2) | 0,003368 | coefficient cinématique. viscosité de l'eau - n, cm2/s à tav |
| D14 | !ERREUR! D12 ne contient ni nombre ni expression | ρ=(-0.003*tav2-0.1511*tav+1003, 1)/1000 | 0,970 | Densité moyenne de l'eau ρ, t/m3 à tav |
| D15 | !ERREUR! D4 ne contient ni nombre ni expression | G’=G*1000/(ρ*60) | 773,024 | Consommation d'eau G', l/min |
| D16 | !ERREUR! D4 ne contient ni nombre ni expression | v=4*G:(ρ*π*(d:1000)2*3600) | 1,640 | Vitesse de l'eau v, m/s |
| D17 | !ERREUR! D16 ne contient ni nombre ni expression | Re=v*d*10/n | 487001,4 | Nombre de Reynolds Re |
| D18 | !ERREUR! La cellule D17 n'existe pas | λ=64/Re à Re≤2320 λ=0.0000147*Re à 2320≤Re≤4000 λ=0,11*(68/Re+∆/d)0,25 à Re≥4000 | 0,035 | Coefficient de frottement hydraulique λ |
| D19 | !ERREUR! La cellule D18 n'existe pas | R=λ*v2*ρ*100/(2*9.81*d) | 0,004645 | Perte de pression de frottement spécifique R, kg/(cm2*m) |
| D20 | !ERREUR! La cellule D19 n'existe pas | dPtr=R*L | 0,464485 | Perte de charge par frottement dPtr, kg/cm2 |
| D21 | !ERREUR! La cellule D20 n'existe pas | dPtr=dPtr*9.81*10000 | 45565,9 | et Pa respectivement D20 |
| D22 | !ERREUR! D10 ne contient ni nombre ni expression | dPms=Σ(ξ)*v2*ρ/(2*9.81*10) | 0,025150 | Perte de charge dans les résistances locales dPms en kg/cm2 |
| D23 | !ERREUR! La cellule D22 n'existe pas | dPtr \u003d dPms * 9,81 * 10000 | 2467,2 | et Pa respectivement D22 |
| D24 | !ERREUR! La cellule D20 n'existe pas | dP=dPtr+dPms | 0,489634 | Perte de pression estimée dP, kg/cm2 |
| D25 | !ERREUR! La cellule D24 n'existe pas | dP=dP*9.81*10000 | 48033,1 | et Pa respectivement D24 |
| D26 | !ERREUR! La cellule D25 n'existe pas | S=dP/G2 | 23,720 | Caractéristique de résistance S, Pa/(t/h)2 |
- la valeur de D15 est recalculée en litres, il est donc plus facile de percevoir le débit ;
- cellule D16 - ajouter une mise en forme selon la condition : "Si v ne se situe pas dans la plage de 0,25 ... 1,5 m/s, alors l'arrière-plan de la cellule est rouge/la police est blanche."
Pour les canalisations avec une différence de hauteur entre l'entrée et la sortie, la pression statique est ajoutée aux résultats : 1 kg/cm2 par 10 m.
Enregistrement des résultats
La palette de couleurs de l'auteur porte une charge fonctionnelle :
- Les cellules turquoise clair contiennent les données d'origine - elles peuvent être modifiées.
- Les cellules vert pâle sont des constantes d'entrée ou des données qui sont peu sujettes à changement.
- Les cellules jaunes sont des calculs préliminaires auxiliaires.
- Les cellules jaune clair sont les résultats des calculs.
- Polices :
- bleu - données initiales ;
- noir - résultats intermédiaires/non principaux ;
- rouge - les résultats principaux et finaux du calcul hydraulique.
Résultats dans une feuille de calcul Excel
Exemple d'Alexandre Vorobyov
Un exemple de calcul hydraulique simple dans Excel pour une section de canalisation horizontale.
Donnée initiale:
- longueur de tuyau 100 mètres;
- ø108mm;
- épaisseur de paroi 4 mm.
Tableau des résultats de calcul des résistances locales
En compliquant les calculs étape par étape dans Excel, vous maîtrisez mieux la théorie et économisez partiellement sur le travail de conception. Grâce à une approche compétente, votre système de chauffage deviendra optimal en termes de coûts et de transfert de chaleur.
Calcul du diamètre des tuyaux du système de chauffage
Ce calcul est basé sur un certain nombre de paramètres. Vous devez d'abord définir puissance calorifique de l'installation de chauffage, puis calculez à quelle vitesse le liquide de refroidissement - eau chaude ou autre type de liquide de refroidissement - se déplacera dans les tuyaux. Cela aidera à faire des calculs aussi précis que possible et à éviter les inexactitudes.
Calcul de la puissance du système de chauffage
Le calcul est effectué selon la formule. Pour calculer la puissance du système de chauffage, vous devez multiplier le volume de la pièce chauffée par le coefficient de perte de chaleur et la différence entre la température hivernale à l'intérieur et à l'extérieur de la pièce, puis diviser la valeur résultante par 860.
Si le bâtiment a paramètres standards, alors le calcul peut être fait dans l'ordre moyen.

Pour déterminer la température résultante, il est nécessaire d'avoir une température extérieure moyenne en hiver et une température intérieure non inférieure à celle réglementée par les exigences sanitaires.
Vitesse du liquide de refroidissement dans le système
Selon les normes, la vitesse de déplacement du liquide de refroidissement à travers les tuyaux de chauffage doit dépasser 0,2 mètre par seconde. Cette exigence est due au fait qu'à une vitesse de déplacement inférieure, l'air est libéré du liquide, ce qui entraîne des poches d'air pouvant perturber le fonctionnement de l'ensemble du système de chauffage.
Le niveau de vitesse supérieur ne doit pas dépasser 1,5 mètre par seconde, car cela peut causer du bruit dans le système.
En général, il est souhaitable de maintenir une barrière à vitesse moyenne afin d'augmenter la circulation et d'augmenter ainsi la productivité du système. Le plus souvent, des pompes spéciales sont utilisées pour y parvenir.
Calcul du diamètre du tuyau du système de chauffage
remplacement de l'ensemble du système de tuyauterie.
Le diamètre du tuyau est calculé à l'aide de formule spéciale.Il comprend:
- diamètre souhaité
- puissance thermique du système
- vitesse du liquide de refroidissement
- la différence entre les températures d'alimentation et de retour du système de chauffage.
Cette différence de température doit être choisie en fonction de conditions d'entrée(pas moins de 95 degrés) et sur la ligne de retour (en règle générale, il est de 65 à 70 degrés). Sur cette base, la différence de température est généralement prise à 20 degrés.
Préparation du calcul
La réalisation d'un calcul qualitatif et détaillé doit être précédée d'un certain nombre de mesures préparatoires à la mise en œuvre des calendriers de calcul. Cette partie peut être appelée la collecte d'informations pour le calcul. Étant la partie la plus difficile de la conception d'un système de chauffage à eau, le calcul de l'hydraulique vous permet de concevoir avec précision tout son travail. Les données en cours de préparation doivent contenir la définition du bilan thermique requis des locaux qui seront chauffés par le système de chauffage conçu.
Dans le projet, le calcul est effectué en tenant compte du type d'appareils de chauffage sélectionnés, avec certaines surfaces d'échange de chaleur et leur placement dans des pièces chauffées, il peut s'agir de batteries de sections de radiateur ou d'autres types d'échangeurs de chaleur. Les points de leur placement sont indiqués sur les plans d'étage de la maison ou de l'appartement.

points de fixation pour appareils de chauffage,
Après avoir déterminé la configuration requise du système sur le plan, celui-ci doit être dessiné en projection axonométrique pour tous les étages. Dans un tel schéma, chaque appareil de chauffage se voit attribuer un numéro, la puissance thermique maximale est indiquée. Un élément important, également indiqué pour un dispositif thermique dans le schéma, est la longueur estimée de la section de canalisation pour son raccordement.
Notation et ordre d'exécution
Les plans doivent obligatoirement indiquer un anneau de circulation prédéterminé, dit principal. Il s'agit nécessairement d'un circuit fermé, comprenant toutes les sections de la canalisation du système avec le débit de liquide de refroidissement le plus élevé. Pour les systèmes bitubes, ces tronçons vont de la chaudière (source d'énergie calorifique) à l'appareil thermique le plus éloigné et reviennent à la chaudière. Pour les systèmes monotubes, une section de la branche est prise - la colonne montante et l'arrière.
L'unité de calcul est une section de canalisation avec un diamètre et un courant (débit) constants du vecteur d'énergie thermique. Sa valeur est déterminée en fonction du bilan thermique de la pièce. Un certain ordre de désignation de tels segments a été adopté, à partir de la chaudière (source de chaleur, générateur d'énergie thermique), ils sont numérotés. S'il y a des branches de la ligne d'alimentation du pipeline, elles sont désignées en majuscules par ordre alphabétique. La même lettre avec un trait indique le point de collecte de chaque branche sur la canalisation principale de retour.
Dans la désignation du début de la branche des appareils de chauffage, le numéro du sol (systèmes horizontaux) ou de la branche - colonne montante (vertical) est indiqué. Le même numéro, mais avec un trait, est placé au point de leur connexion à la ligne de retour pour collecter les flux de liquide de refroidissement. Ensemble, ces désignations constituent le numéro de chaque branche de la section calculée.La numérotation est dans le sens des aiguilles d'une montre à partir du coin supérieur gauche du plan. Selon le plan, la longueur de chaque branche est également déterminée, l'erreur ne dépasse pas 0,1 m.

Sans entrer dans les détails, il faut dire que des calculs supplémentaires permettent de déterminer les diamètres des tuyaux de chaque section du système de chauffage, la perte de charge sur ceux-ci et d'équilibrer hydrauliquement tous les anneaux de circulation dans les systèmes de chauffage à eau complexes.
Détermination du diamètre du tuyau
Pour déterminer enfin le diamètre et l'épaisseur des tuyaux de chauffage, il reste à discuter de la question des pertes de chaleur.

La quantité maximale de chaleur quitte la pièce à travers les murs - jusqu'à 40%, à travers les fenêtres - 15%, le sol - 10%, tout le reste à travers le plafond / le toit. L'appartement est caractérisé par des pertes principalement à travers les fenêtres et les modules de balcon.
Il existe plusieurs types de pertes de chaleur dans les pièces chauffées :
- Perte de pression de débit dans une conduite. Ce paramètre est directement proportionnel au produit de la perte de charge spécifique à l'intérieur du tuyau (fournie par le fabricant) et de la longueur totale du tuyau. Mais compte tenu de la tâche actuelle, de telles pertes peuvent être ignorées.
- Perte de charge aux résistances locales des conduites - coûts de chauffage au niveau des raccords et des équipements intérieurs. Mais étant donné les conditions du problème, un petit nombre de coudes de montage et le nombre de radiateurs, de telles pertes peuvent être négligées.
- Perte de chaleur en fonction de l'emplacement de l'appartement. Il existe un autre type de coût de chauffage, mais il est davantage lié à l'emplacement de la pièce par rapport au reste du bâtiment. Pour un appartement ordinaire, situé au milieu de la maison et adjacent à gauche / droite / haut / bas avec d'autres appartements, les pertes de chaleur à travers les murs latéraux, le plafond et le sol sont presque égales à «0».
Vous ne pouvez prendre en compte les pertes que par la partie avant de l'appartement - le balcon et la fenêtre centrale de la salle commune. Mais cette question est fermée en ajoutant 2-3 sections à chacun des radiateurs.
La valeur du diamètre du tuyau est choisie en fonction du débit du liquide de refroidissement et de la vitesse de sa circulation dans le réseau de chauffage
En analysant les informations ci-dessus, il convient de noter que pour la vitesse calculée de l'eau chaude dans le système de chauffage, la vitesse tabulaire de mouvement des particules d'eau par rapport à la paroi du tuyau en position horizontale de 0,3-0,7 m / s est connue.
Pour aider l'assistant, nous présentons la soi-disant liste de contrôle pour effectuer des calculs pour un calcul hydraulique typique d'un système de chauffage :
- collecte de données et calcul de la puissance de la chaudière ;
- volume et vitesse du liquide de refroidissement;
- perte de chaleur et diamètre du tuyau.
Parfois, lors du calcul, il est possible d'obtenir un diamètre de tuyau suffisamment grand pour couvrir le volume calculé du liquide de refroidissement. Ce problème peut être résolu en augmentant la capacité de la chaudière ou en ajoutant un vase d'expansion supplémentaire.
Sur notre site il y a un bloc d'articles consacré au calcul du système de chauffage, nous vous conseillons de lire :
- Calcul thermique du système de chauffage: comment calculer correctement la charge du système
- Calcul du chauffage de l'eau: formules, règles, exemples de mise en œuvre
- Calcul thermique d'un bâtiment : spécificités et formules pour effectuer les calculs + exemples pratiques
Puissance du générateur de chaleur
L'un des principaux composants du système de chauffage est une chaudière: électrique, gaz, combinée - à ce stade, cela n'a pas d'importance. Étant donné que sa principale caractéristique est importante pour nous - la puissance, c'est-à-dire la quantité d'énergie par unité de temps qui sera dépensée pour le chauffage.
La puissance de la chaudière elle-même est déterminée par la formule ci-dessous :
Wchaudière = (Salle*Wspécifique) / 10,
où:
- Sroom - la somme des surfaces de toutes les pièces nécessitant un chauffage;
- Wspécifique - puissance spécifique, en tenant compte des conditions climatiques du lieu (c'est pourquoi il était nécessaire de connaître le climat de la région).
De manière caractéristique, pour différentes zones climatiques, nous disposons des données suivantes :
- régions du nord - 1,5 - 2 kW / m2;
- zone centrale - 1 - 1,5 kW / m2;
- régions du sud - 0,6 - 1 kW / m2.
Ces chiffres sont plutôt conditionnels, mais ils donnent néanmoins une réponse numérique claire quant à l'influence de l'environnement sur le système de chauffage d'un appartement.
Cette carte montre les zones climatiques avec différents régimes de température. Cela dépend de l'emplacement du logement par rapport à la zone combien vous devez dépenser pour chauffer un mètre par kilowatt carré d'énergie (+)
La superficie de l'appartement à chauffer est égale à la superficie totale de l'appartement et est égale à 65,54-1,80-6,03 = 57,71 m2 (moins le balcon). La puissance spécifique de la chaudière pour la région centrale aux hivers froids est de 1,4 kW/m2. Ainsi, dans notre exemple, la puissance calculée de la chaudière de chauffage équivaut à 8,08 kW.
Calcul de la puissance thermique du système de chauffage
La puissance thermique du système de chauffage est la quantité de chaleur qui doit être générée dans la maison pour une vie confortable pendant la saison froide.
Calcul thermique de la maison
Il existe une relation entre la surface totale de chauffage et la puissance de la chaudière. Dans le même temps, la puissance de la chaudière doit être supérieure ou égale à la puissance de tous les appareils de chauffage (radiateurs). Le calcul standard d'ingénierie thermique pour les locaux d'habitation est le suivant : 100 W de puissance pour 1 m² de surface chauffée plus 15 à 20 % de la marge.
Le calcul du nombre et de la puissance des appareils de chauffage (radiateurs) doit être effectué individuellement pour chaque pièce.Chaque radiateur a une certaine puissance calorifique. Dans les radiateurs sectionnels, la puissance totale est la somme de la puissance de toutes les sections utilisées.
Dans les systèmes de chauffage simples, les méthodes de calcul de puissance ci-dessus sont suffisantes. L'exception concerne les bâtiments avec une architecture non standard, de grandes surfaces vitrées, de hauts plafonds et d'autres sources de perte de chaleur supplémentaire. Dans ce cas, une analyse et un calcul plus détaillés utilisant des facteurs multiplicateurs seront nécessaires.
Calcul thermotechnique prenant en compte les déperditions de chaleur de la maison
Le calcul des pertes de chaleur à la maison doit être effectué pour chaque pièce séparément, en tenant compte des fenêtres, des portes et des murs extérieurs.
Plus en détail, les données suivantes sont utilisées pour les données de perte de chaleur :
- Épaisseur et matériau des murs, revêtements.
- Structure et matériau du toit.
- Type et matériau de fondation.
- Type de vitrage.
- Type de chape.
Pour déterminer la puissance minimale requise du système de chauffage, en tenant compte des pertes de chaleur, vous pouvez utiliser la formule suivante :
Qt (kWh) = V × ΔT × K ⁄ 860, où :
Qt est la charge thermique de la pièce.
V est le volume de la pièce chauffée (largeur × longueur × hauteur), m³.
ΔT est la différence entre la température de l'air extérieur et la température intérieure requise, °C.
K est le coefficient de perte de chaleur du bâtiment.
860 - conversion du coefficient en kWh.
Le coefficient de déperdition thermique du bâtiment K dépend du type de construction et de l'isolation de la pièce :
| K | Type de construction |
| 3 — 4 | Une maison sans isolation thermique est une structure simplifiée ou une structure en tôle ondulée. |
| 2 — 2,9 | Maison à faible isolation thermique - structure de construction simplifiée, maçonnerie simple, construction simplifiée des fenêtres et du toit. |
| 1 — 1,9 | Isolation Moyenne - Construction Standard, Double Maçonnerie, Peu de Fenêtres, Toit Standard. |
| 0,6 — 0,9 | Isolation thermique élevée - construction améliorée, murs en briques isolés thermiquement, peu de fenêtres, sol isolé, toiture en tarte de haute qualité isolée thermiquement. |
La différence entre la température de l'air extérieur et la température intérieure requise ΔT est déterminée en fonction des conditions météorologiques spécifiques et du niveau de confort requis dans la maison. Par exemple, si la température extérieure est de -20 °C et que +20 °C est prévu à l'intérieur, alors ΔT = 40 °C.
Comment calculer la puissance d'une chaudière à gaz pour la superficie de la maison?
Pour ce faire, vous devrez utiliser la formule :
Dans ce cas, Mk s'entend comme la puissance thermique souhaitée en kilowatts. En conséquence, S est la superficie de votre maison en mètres carrés et K est la puissance spécifique de la chaudière - la «dose» d'énergie dépensée pour chauffer 10 m2.
Calcul de la puissance d'une chaudière à gaz
Comment calculer l'aire ? Tout d'abord, selon le plan de l'habitation. Ce paramètre est indiqué dans les documents de la maison. Vous ne souhaitez pas rechercher de documents ? Ensuite, vous devrez multiplier la longueur et la largeur de chaque pièce (y compris la cuisine, le garage chauffé, la salle de bain, les toilettes, les couloirs, etc.) en additionnant toutes les valeurs obtenues.
Où puis-je obtenir la valeur de la puissance spécifique de la chaudière ? Bien sûr, dans la littérature de référence.
Si vous ne souhaitez pas « creuser » dans les annuaires, tenez compte des valeurs suivantes de ce coefficient :
- Si dans votre région la température hivernale ne descend pas en dessous de -15 degrés Celsius, le facteur de puissance spécifique sera de 0,9-1 kW/m2.
- Si en hiver vous observez des gelées jusqu'à -25°C, alors votre coefficient est de 1,2-1,5 kW/m2.
- Si en hiver la température descend à -35 ° C et en dessous, alors dans les calculs de puissance thermique, vous devrez opérer avec une valeur de 1,5-2,0 kW / m2.
En conséquence, la puissance d'une chaudière qui chauffe un bâtiment de 200 "carrés" situé dans la région de Moscou ou de Leningrad est de 30 kW (200 x 1,5/10).
Comment calculer la puissance de la chaudière de chauffage par le volume de la maison ?
Dans ce cas, il faudra se baser sur les déperditions thermiques de la structure, calculées par la formule :
Par Q dans ce cas, nous entendons la perte de chaleur calculée. À son tour, V est le volume et ∆T est la différence de température entre l'intérieur et l'extérieur du bâtiment. k est compris comme le coefficient de dissipation thermique, qui dépend de l'inertie des matériaux de construction, des vantaux de porte et des châssis de fenêtre.
Nous calculons le volume du chalet
Comment déterminer le volume ? Bien sûr, selon le plan de construction. Ou en multipliant simplement la superficie par la hauteur des plafonds. La différence de température s'entend comme "l'écart" entre la valeur "ambiante" généralement acceptée - 22-24 ° C - et les lectures moyennes d'un thermomètre en hiver.
Le coefficient de dissipation thermique dépend de la résistance thermique de la structure.
Ainsi, selon les matériaux de construction et les technologies utilisées, ce coefficient prend les valeurs suivantes :
- De 3,0 à 4,0 - pour les entrepôts sans cadre ou les stockages à cadre sans isolation des murs et du toit.
- De 2,0 à 2,9 - pour les bâtiments techniques en béton et en brique, complétés par une isolation thermique minimale.
- De 1,0 à 1,9 - pour les maisons anciennes construites avant l'ère des technologies d'économie d'énergie.
- De 0,5 à 0,9 - pour les maisons modernes construites conformément aux normes modernes d'économie d'énergie.
En conséquence, la puissance de la chaudière chauffant un bâtiment moderne et économe en énergie d'une superficie de 200 mètres carrés et d'un plafond de 3 mètres, situé dans une zone climatique avec des gelées de 25 degrés, atteint 29,5 kW ( 200x3x (22 + 25) x0,9 / 860).
Comment calculer la puissance d'une chaudière avec un circuit d'eau chaude ?
Pourquoi avez-vous besoin d'une marge de 25 % ? Tout d'abord, pour reconstituer les coûts énergétiques dus à la "sortie" de chaleur vers l'échangeur de chaleur à eau chaude lors du fonctionnement de deux circuits. En termes simples : pour ne pas geler après avoir pris une douche.
Chaudière à combustible solide Spark KOTV - 18V avec un circuit d'eau chaude
En conséquence, une chaudière à double circuit desservant les systèmes de chauffage et d'eau chaude dans une maison de 200 "carrés", située au nord de Moscou, au sud de Saint-Pétersbourg, devrait générer au moins 37,5 kW de puissance thermique (30 x 125%).
Quelle est la meilleure façon de calculer - par surface ou par volume ?
Dans ce cas, nous ne pouvons que donner les conseils suivants :
- Si vous avez une disposition standard avec une hauteur sous plafond allant jusqu'à 3 mètres, comptez par zone.
- Si la hauteur du plafond dépasse la barre des 3 mètres ou si la superficie du bâtiment est supérieure à 200 mètres carrés, comptez en volume.
Combien coûte le kilowatt "supplémentaire" ?
Compte tenu du rendement de 90 % d'une chaudière ordinaire, pour la production de 1 kW de puissance thermique, il faut consommer au moins 0,09 mètre cube de gaz naturel d'un pouvoir calorifique de 35 000 kJ/m3. Soit environ 0,075 mètre cube de carburant avec un pouvoir calorifique maximum de 43 000 kJ/m3.
En conséquence, pendant la période de chauffage, une erreur de calcul pour 1 kW coûtera au propriétaire 688 à 905 roubles.Par conséquent, soyez prudent dans vos calculs, achetez des chaudières à puissance réglable et ne cherchez pas à « gonfler » la capacité de génération de chaleur de votre appareil de chauffage.
Nous vous conseillons également de consulter :
- Chaudières à gaz GPL
- Chaudières à combustible solide à double circuit pour combustion longue durée
- Chauffage à la vapeur dans une maison privée
- Cheminée pour chaudière à combustible solide
Concernant les travaux préliminaires.
Étant donné que le calcul hydraulique nécessite beaucoup de temps et d'efforts, nous devons d'abord effectuer quelques calculs :
- Déterminez l'équilibre des pièces et des pièces chauffées.
- Décidez du type d'équipement de chauffage et de l'échangeur de chaleur. Disposez-les selon le plan général du bâtiment.
- Avant de procéder au calcul, il est nécessaire de sélectionner les canalisations et de décider de la configuration du système de chauffage dans son ensemble.
- Il est nécessaire de faire un schéma du système, de préférence un schéma axonométrique. Dans celui-ci, indiquez la longueur des sections, les nombres et l'ampleur de la charge.
- L'anneau de circulation doit également être installé à l'avance.
Important! Si le calcul concerne une maison en bois, il n'y aura aucune différence entre celle-ci et la brique, le béton, etc.
Ne fera pas.
Consommation de liquide de refroidissement
Le débit de liquide de refroidissement est calculé par la formule :
,
où Q est la puissance totale du système de chauffage, kW; issue du calcul des déperditions thermiques du bâtiment
Cp est la capacité calorifique spécifique de l'eau, kJ/(kg*deg.C); pour des calculs simplifiés, nous prenons égal à 4,19 kJ / (kg * deg. C)
ΔPt est la différence de température à l'entrée et à la sortie ; généralement nous prenons l'approvisionnement et le retour de la chaudière
Calculateur de flux caloporteur (uniquement pour l'eau)
Q = kW ; Δt = oC ; m = l/s
De la même manière, vous pouvez calculer le débit du liquide de refroidissement dans n'importe quelle section du tuyau.Les sections sont sélectionnées de manière à ce que le tuyau ait la même vitesse de l'eau. Ainsi, le partitionnement en sections se produit avant le té, ou avant la réduction. Il est nécessaire d'additionner par puissance tous les radiateurs vers lesquels le liquide de refroidissement circule à travers chaque section du tuyau. Remplacez ensuite la valeur dans la formule ci-dessus. Ces calculs doivent être effectués pour les tuyaux devant chaque radiateur.
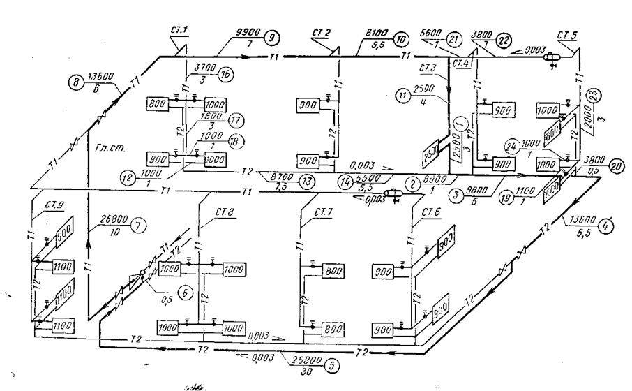
Calcul hydraulique du système de chauffage - exemple de calcul
Prenons l'exemple d'un système de chauffage par gravité à deux tuyaux.
Données initiales pour le calcul :
- charge thermique calculée du système - Qsp. = 133 kW ;
- paramètres système - tg = 750С, tо = 600С;
- débit de liquide de refroidissement (calculé) – Vco = 7,6 m3/h ;
- le système de chauffage est relié aux chaudières par un séparateur hydraulique de type horizontal ;
- l'automatisation de chacune des chaudières tout au long de l'année maintient une température constante du liquide de refroidissement à la sortie - tg = 800C ;
- un régulateur automatique de pression différentielle est installé à l'entrée de chaque distributeur ;
- le système de chauffage des distributeurs est assemblé à partir de tuyaux en métal-plastique et l'alimentation en chaleur des distributeurs est réalisée au moyen de tuyaux en acier (conduites d'eau et de gaz).
Les diamètres des sections de pipeline ont été sélectionnés à l'aide d'un nomogramme pour une vitesse de refroidissement donnée de 0,4 à 0,5 m/s.
Dans la section 1, une vanne DN 65 est installée, sa résistance, selon les informations du fabricant, est de 800 Pa.
Dans la section 1a, un filtre d'un diamètre de 65 mm et d'un débit de 55 m3/h est installé. La résistance de cet élément sera :
0,1 x (G / kv) x 2 \u003d 0,1 x (7581/55) x 2 \u003d 1900 Pa.
La résistance de la vanne à trois voies dø = 40 mm et kv = 25 m3/h sera de 9200 Pa.
De même, le calcul des parties restantes du système d'alimentation en chaleur des distributeurs est effectué. Lors du calcul du système de chauffage, l'anneau de circulation principal est sélectionné à partir du distributeur via l'appareil de chauffage le plus chargé. Le calcul hydraulique est effectué en utilisant la 1ère direction.
Consommation de liquide de refroidissement
Consommation de liquide de refroidissement
Pour montrer comment le calcul hydraulique du chauffage est effectué, prenons par exemple un schéma de chauffage simple, qui comprend une chaudière de chauffage et des radiateurs de chauffage avec une consommation de chaleur en kilowatts. Et il y a 10 radiateurs de ce type dans le système.
Ici, il est important de diviser correctement l'ensemble du schéma en sections tout en respectant strictement une règle - dans chaque section, le diamètre des tuyaux ne doit pas changer. Ainsi, la première section est un pipeline allant de la chaudière au premier appareil de chauffage. La deuxième section est une canalisation entre le premier et le deuxième radiateur
Etc
La deuxième section est une canalisation entre le premier et le deuxième radiateur. Etc
Ainsi, la première section est un pipeline allant de la chaudière au premier appareil de chauffage. La deuxième section est une canalisation entre le premier et le deuxième radiateur. Etc.
Comment se produit le transfert de chaleur et comment la température du liquide de refroidissement diminue-t-elle ? En entrant dans le premier radiateur, le liquide de refroidissement dégage une partie de la chaleur, qui est réduite de 1 kilowatt. C'est dans la première section que le calcul hydraulique est effectué sous 10 kilowatts. Mais dans la deuxième section, il est déjà inférieur à 9. Et ainsi de suite avec une diminution.
Il existe une formule permettant de calculer le débit du liquide de refroidissement :
G \u003d (3,6 x Qch) / (avec x (tr-to))
Qch est la charge calorifique calculée du site. Dans notre exemple, pour la première section elle est de 10 kW, pour la seconde de 9.
c est la capacité calorifique spécifique de l'eau, l'indicateur est constant et égal à 4,2 kJ / kg x C;
tr est la température du fluide caloporteur à l'entrée de la section ;
to est la température du fluide caloporteur à la sortie du site.
…et pendant toute la durée de vie du système
Nous voulons que le système hydraulique fonctionne comme il se doit, tout au long de sa vie. Avec TA SCOPE et TA Select, vous pouvez facilement vérifier si le système fonctionne correctement.
Dans le TA SCOPE, le débit, la pression différentielle, 2 températures, la température différentielle et la puissance sont saisis. Pour analyser ces données mesurées, elles sont chargées dans TA Select.
Après collecte de données de base, déterminant les pertes de chaleur de la maison et la puissance des radiateurs, il reste à effectuer un calcul hydraulique du système de chauffage. Correctement exécuté, il est la garantie d'un fonctionnement correct, silencieux, stable et fiable du système de chauffage. De plus, c'est un moyen d'éviter des investissements en capital et des coûts énergétiques inutiles.
Calcul du volume d'eau et de la capacité du vase d'expansion

Pour calculer les performances du vase d'expansion, qui est obligatoire pour tout système de chauffage de type fermé, vous devrez comprendre le phénomène d'augmentation du volume de liquide qu'il contient. Cet indicateur est estimé en tenant compte des changements dans les principales caractéristiques de performance, y compris les fluctuations de sa température. Dans ce cas, il varie dans une très large gamme - de la température ambiante à +20 degrés et jusqu'à des valeurs de fonctionnement comprises entre 50 et 80 degrés.
Il sera possible de calculer le volume du vase d'expansion sans aucun problème si vous utilisez une estimation approximative qui a fait ses preuves dans la pratique.Il est basé sur l'expérience d'exploitation de l'équipement, selon laquelle le volume du vase d'expansion est d'environ un dixième de la quantité totale de liquide de refroidissement circulant dans le système.
Dans le même temps, tous ses éléments sont pris en compte, y compris les radiateurs de chauffage (batteries), ainsi que la chemise d'eau de la chaudière. Pour déterminer la valeur exacte de l'indicateur souhaité, vous devrez prendre le passeport de l'équipement utilisé et y trouver les éléments relatifs à la capacité des batteries et au réservoir de travail de la chaudière. Après leur détermination, il n'est pas difficile de trouver l'excès de liquide de refroidissement dans le système
Pour ce faire, la section transversale des tuyaux en polypropylène est d'abord calculée, puis la valeur résultante est multipliée par la longueur du pipeline. Après avoir résumé pour toutes les branches du système de chauffage, les numéros tirés du passeport pour les radiateurs et la chaudière leur sont ajoutés. Un dixième du total est alors déduit
Après leur détermination, il n'est pas difficile de trouver l'excès de liquide de refroidissement dans le système. Pour ce faire, la section transversale des tuyaux en polypropylène est d'abord calculée, puis la valeur résultante est multipliée par la longueur du pipeline. Après avoir résumé pour toutes les branches du système de chauffage, les numéros tirés du passeport pour les radiateurs et la chaudière leur sont ajoutés. Un dixième du total est alors compté.
Outils dans le menu principal de Valtec
Valtec, comme tout autre programme, a un menu principal en haut.
Nous cliquons sur le bouton "Fichier" et dans le sous-menu qui s'ouvre, nous voyons les outils standard connus de tout utilisateur d'ordinateur à partir d'autres programmes :
Le programme "Calculatrice", intégré à Windows, est lancé - pour effectuer des calculs :
Avec l'aide du "Convertisseur", nous convertirons une unité de mesure en une autre :
Il y a trois colonnes ici :
À l'extrême gauche, nous sélectionnons la grandeur physique avec laquelle nous travaillons, par exemple la pression. Dans la colonne du milieu - l'unité à partir de laquelle vous souhaitez convertir (par exemple, Pascals - Pa), et à droite - vers laquelle vous souhaitez convertir (par exemple, en atmosphères techniques). Il y a deux lignes dans le coin supérieur gauche de la calculatrice, nous conduirons la valeur obtenue lors des calculs dans celle du haut, et la conversion vers les unités de mesure requises sera immédiatement affichée dans celle du bas ... Mais nous allons parler de tout cela en temps voulu, quand il s'agit de pratiquer.
En attendant, nous continuons à nous familiariser avec le menu "Outils". Générateur de formulaire :
Ceci est nécessaire pour les concepteurs qui réalisent des projets sur commande. Si nous ne chauffons que dans notre maison, nous n'avons pas besoin du générateur de formulaires.
Le bouton suivant dans le menu principal du programme Valtec est "Styles":
Il s'agit de contrôler l'apparence de la fenêtre du programme - il s'adapte au logiciel installé sur votre ordinateur. Pour moi, c'est un gadget tellement inutile, car je fais partie de ceux pour qui l'essentiel n'est pas les "dames", mais d'y arriver. Et vous décidez vous-même.
Examinons de plus près les outils sous ce bouton.
Dans "Climatologie", nous sélectionnons la zone de construction :
La perte de chaleur dans la maison dépend non seulement des matériaux des murs et des autres structures, mais également du climat de la zone où se trouve le bâtiment. Par conséquent, les exigences du système de chauffage dépendent du climat.
Dans la colonne de gauche, nous trouvons la zone dans laquelle nous vivons (république, région, région, ville). Si notre colonie n'est pas ici, choisissez la plus proche.
"Matériaux". Voici les paramètres de divers matériaux de construction utilisés dans la construction de maisons.C'est pourquoi, lors de la collecte des données initiales (voir les matériaux de conception précédents), nous avons répertorié les matériaux des murs, des sols, des plafonds :
Outil de trou. Voici les informations sur les ouvertures de portes et fenêtres :
"Tuyaux". Voici des informations collectées sur les paramètres des tuyaux utilisés dans les systèmes de chauffage: dimensions internes et externes, coefficients de résistance, rugosité des surfaces internes:
Nous en aurons besoin dans les calculs hydrauliques - pour déterminer la puissance de la pompe de circulation.
"Réchauffeurs". En fait, il n'y a rien ici sauf les caractéristiques de ces liquides de refroidissement qui peuvent être versés dans le système de chauffage de la maison :
Ces caractéristiques sont la capacité calorifique, la densité, la viscosité.
L'eau n'est pas toujours utilisée comme liquide de refroidissement, il arrive que des antigels soient versés dans le système, appelés "antigel" dans le commun des mortels. Nous parlerons du choix du liquide de refroidissement dans un article séparé.
Les "consommateurs" pour le calcul du système de chauffage ne sont pas nécessaires, car cet outil de calcul des systèmes d'alimentation en eau:
« KMS » (coefficients de résistance locale) :
Tout appareil de chauffage (radiateur, vanne, thermostat, etc.) crée une résistance au mouvement du liquide de refroidissement, et ces résistances doivent être prises en compte afin de sélectionner correctement la puissance de la pompe de circulation.
"Appareils selon DIN". Ceci, comme "Consommateurs", concerne davantage les systèmes d'approvisionnement en eau :
Conclusions et vidéo utile sur le sujet
Caractéristiques, avantages et inconvénients des systèmes de circulation naturelle et forcée du liquide de refroidissement pour les systèmes de chauffage :
En résumant les calculs du calcul hydraulique, nous avons reçu des caractéristiques physiques spécifiques du futur système de chauffage.
Naturellement, il s'agit d'un schéma de calcul simplifié qui donne des données approximatives concernant le calcul hydraulique du système de chauffage d'un appartement de deux pièces typique.
Essayez-vous d'effectuer indépendamment un calcul hydraulique du système de chauffage? Ou peut-être n'êtes-vous pas d'accord avec le matériel présenté ? Nous attendons vos commentaires et questions - le bloc de commentaires se trouve ci-dessous.




















