- Méthodes de vérification
- Installation d'un accumulateur de chauffage
- Le coût des relais et accumulateurs de certains fabricants
- Le principe de fonctionnement du relais
- Valeur de pression dans l'accumulateur
- Types d'accumulateurs
- Avantages et inconvénients de l'AT
- Réalisation de travaux de raccordement et de mise en place d'un pressostat pour un accumulateur hydraulique
- Schéma standard de connexion d'un pressostat à un accumulateur hydraulique
- Réglage correct du pressostat d'accumulateur
- À quelle vitesse les réserves d'énergie sont épuisées
- Comment configurer le système pour 50 litres?
- Pression optimale à l'intérieur du réservoir hydraulique
- Étapes d'installation à faire soi-même pour un hydroaccumulateur pour les systèmes d'alimentation en eau
- Choisir un schéma de raccordement de réservoir hydraulique
- Raccordement de l'accumulateur au système d'alimentation en eau
- Quelle pression devrait être dans l'accumulateur: nous vérifions l'opérabilité du système
- Vases d'expansion avec poire en caoutchouc
- Comment régler correctement la pression dans l'accumulateur
- Éléments de travail de l'appareil et fonctionnement
- Comment changer une ampoule dans un réservoir d'eau sous pression
- Comment vérifier la membrane dans l'accumulateur pour les fuites
- Le principe de fonctionnement du pressostat
Méthodes de vérification
Vous pouvez utiliser un manomètre de voiture pour vérifier la pression.
L'air pompé dans le réservoir à l'usine s'échappe progressivement à travers la membrane en caoutchouc et le mamelon.La raréfaction de la cavité gazeuse entraîne un étirement excessif de la poire en caoutchouc lorsqu'elle est remplie de liquide. Sans résistance, la membrane s'use rapidement et peut éclater. La pression atmosphérique est mesurée avec un manomètre. La meilleure option est un appareil de mesure automobile.
Les instructions du fabricant indiquent le nombre de vérifications pour le modèle d'appareil. La moyenne est de 2 fois par an. Avant de commencer la procédure de mesure des paramètres, il est nécessaire de vidanger tout le liquide du réservoir. La pompe est déconnectée du système d'alimentation électrique. Au moment de la mesure, le réservoir doit être vide. Un contrôle est nécessaire avant de connecter l'appareil au système. Lors du stockage dans un entrepôt, de l'air peut s'échapper du réservoir. La pression de travail est indiquée dans la fiche technique du produit.
Pour effectuer le contrôle, dévissez le capuchon décoratif qui ferme la tétine. Le nœud est situé dans la partie supérieure du corps. Un manomètre est relié au tiroir. L'appareil doit avoir une erreur minimale. Les appareils électroniques et automobiles sont recommandés. Il vaut mieux ne pas utiliser de manomètres en plastique bon marché, ils ont une erreur importante dans les indicateurs. Si le niveau est inférieur aux paramètres d'usine, l'air est pompé à l'aide d'un compresseur. L'accumulateur est laissé pendant une journée pour contrôle. Après la prochaine mesure, correspondant à la norme, l'appareil est installé. Le dépassement de la pression optimale est éliminé en purgeant l'air.
Installation d'un accumulateur de chauffage
Le vase d'expansion doit être installé uniquement dans une pièce chauffée. Si le poids de l'accumulateur dépasse 30 kilogrammes, il est installé sur un support spécial. L'emplacement du détendeur doit être facilement accessible pour l'entretien.

Systèmes de chauffage et d'approvisionnement en eau
L'insert est réalisé dans les tuyaux uniquement sur la ligne de retour. L'insert est réalisé entre le dernier radiateur, à proximité de la chaudière. Un clapet anti-retour et un manomètre sont installés devant le vase d'expansion pour mesurer en permanence la pression dans le système.

Il est préférable de choisir un modèle avec une membrane remplaçable, qui est remplacée en cas de panne sans trop d'effort. Si possible et souhaité, l'accumulateur peut être installé sans aide extérieure, mais si vous n'êtes pas sûr ou ne voulez pas vous embêter pendant longtemps, vous pouvez faire appel à un spécialiste. Cependant, dans ce cas, vous ne pourrez pas sauvegarder.

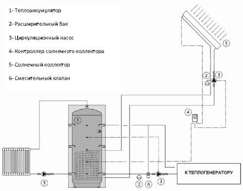
Accumulateur de chaleur dans le système de chauffage solaire
La nécessité d'améliorer le système de chauffage de leur propre maison oblige les propriétaires à rechercher constamment des idées utiles, des dispositifs supplémentaires permettant d'économiser du carburant, de répartir uniformément la chaleur à l'intérieur de la maison et d'augmenter le transfert de chaleur des radiateurs.
Le problème de la distribution uniforme de la chaleur est particulièrement aigu dans les maisons équipées de chaudières à combustible solide. En eux, il est impossible d'arrêter instantanément le processus de combustion du carburant et l'apport de chaleur au pipeline du système. Si vous fermez le robinet d'alimentation, l'eau chaude accumulée à l'entrée peut atteindre le point d'ébullition et endommager une partie de la canalisation. Vous pouvez répartir le nombre de petits bois dans le temps. De telles solutions sont laborieuses et inefficaces. Dans ce cas, il est conseillé d'utiliser un accumulateur de chaleur, qui assurera une répartition uniforme de la chaleur dans toute la maison et éliminera les fluctuations de température.
Dans les maisons où un accumulateur de chaleur est intégré, les pertes de chaleur sont considérablement réduites.
Un accumulateur hydraulique est un récipient qui accumule la chaleur produite par une chaudière à combustible solide et la conserve longtemps. L'appareil fonctionne sur le principe d'un thermos.
Le réservoir de stockage se compose des composants suivants :
- Récipient en acier ou en inox de grande taille (rectangulaire ou rond) ;
- Quatre buses à l'intérieur du réservoir, espacées en hauteur. L'un est la sortie du réchauffeur vers le réservoir et l'autre est l'entrée du système de chauffage, le même en bas;
- Une soupape de sécurité est intégrée dans l'accumulateur en haut;
- À l'extérieur, le conteneur est isolé avec une épaisse couche de matériau isolant.
Le réservoir tampon accumule le liquide de refroidissement chauffé à l'intérieur, maintient la chaleur dans la maison jusqu'à deux jours après l'arrêt du système de chauffage.
Lors de l'installation d'un accumulateur hydraulique, il est nécessaire d'aménager un circuit de tuyauterie entre celui-ci et la chaudière, comprenant :
- Pompe de circulation ;
- Mitigeur thermique ;
- Vase d'expansion.
Le réservoir de stockage doit être isolé thermiquement, sinon la chaleur générée chauffera la pièce où se trouve l'accumulateur.
Le réservoir de stockage fonctionne comme ceci :
- À partir d'une chaudière à combustible solide, l'eau chauffée pénètre dans le tuyau supérieur;
- La pompe de circulation, pendant son fonctionnement, expulse l'eau froide du bas de l'accumulateur de chaleur dans la chaudière à combustible solide jusqu'à ce que tout le réservoir soit rempli d'eau chaude ;
- L'étape suivante consiste à fournir de l'eau chaude du réservoir de la batterie au système de chauffage. À l'aide d'une pompe de circulation du système de chauffage, l'eau refroidie est distillée dans le réservoir et du réservoir dans le système.
Le coût des relais et accumulateurs de certains fabricants
Les modèles de relais peuvent être achetés relativement peu cher. Habituellement, le coût des produits ne dépasse pas mille roubles. Cependant, les homologues électroniques peuvent avoir un prix plus élevé, car ils permettent un réglage plus précis. Le tableau montre les modèles de certains fabricants et leur coût.

Pressostat présenté Gileks RDM-5
| Image | Modèle | Dimensions en mm | Prix en roubles |
|---|---|---|---|
| Gilex RDM-5 | 110x110x70 | 900 | |
| DanfossKP1 | 107x65x105 | 1 570 | |
| Belamos PS-7 | 150x80x150 | 575 | |
| Calibre RD-5 | 103x65x120 | 490 |
Quant aux accumulateurs hydrauliques, leur coût peut être sensiblement plus élevé. Cela dépend principalement du volume de la structure. Un réservoir de grande capacité peut réduire considérablement le nombre de cycles de travail. Cependant, il n'y a pas toujours assez d'espace pour cela. Le tableau indique les prix des accumulateurs pour l'approvisionnement en eau de différentes tailles.

Capacité hydraulique Peuplier 24 l
| Fabricant | Volume en litres | Coût en roubles |
|---|---|---|
| Gilex | 24 | 1 400 |
| 50 | 3 500 | |
| 100 | 6 300 | |
| Peuplier | 24 | 1 100 |
| 50 | 2 900 | |
| 100 | 5 100 |

Accumulateur hydraulique Gileks, contenant 24 litres
Le principe de fonctionnement du relais
L'élément principal du pressostat peut être appelé un groupe de contacts fixés sur une base métallique. C'est cette partie qui allume et éteint l'appareil. Il y a un grand et un petit ressort à côté des contacts, ils régulent la pression à l'intérieur du système et aident à résoudre le problème de l'augmentation de la pression de l'eau dans la station de pompage. Le couvercle de la membrane est fixé au bas de la base en métal, en dessous, vous pouvez voir directement la membrane et le piston en métal. Ferme toute la structure avec un capuchon en plastique.

Pour comprendre comment configurer correctement une station de pompage, vous devez savoir que le pressostat fonctionne selon le schéma suivant:
- A l'ouverture du robinet, l'eau du réservoir de stockage s'écoule vers le point d'analyse. Lors du processus de vidange du récipient, la pression commence à diminuer progressivement, respectivement, le degré de pression de la membrane sur le piston diminue. Les contacts se ferment et la pompe commence à fonctionner.
- Pendant le fonctionnement de la pompe, les robinets aux points d'analyse peuvent être ouverts, à ce moment l'eau entre dans le consommateur.Lorsque le robinet est fermé, le réservoir hydraulique commence à se remplir d'eau.
- Une augmentation du niveau d'eau dans le réservoir entraîne une augmentation de la pression dans le système, qui commence à exercer une pression sur la membrane. Il commence à exercer une pression sur le piston, ce qui aide à ouvrir les contacts et à arrêter la pompe.
Un régulateur de pression de pompe à eau correctement réglé assure la fréquence normale d'allumage et d'extinction de la station de pompage, la pression d'eau normale et la durée de vie de l'équipement. Des paramètres mal réglés provoquent un fonctionnement continu de la pompe ou son arrêt complet.
Valeur de pression dans l'accumulateur
Une pression optimale dans l'accumulateur assure une pression d'eau constante et évite l'usure des pièces du système
À l'intérieur du réservoir hydraulique, il y a deux fluides - air ou gaz et eau remplissant la membrane en caoutchouc. Le principe de fonctionnement de l'appareil: lorsque la pompe est allumée, le liquide pénètre dans le récipient extensible. Le gaz est comprimé, sa pression augmente. La pression de l'air pousse l'eau hors de la membrane vers les tuyaux de distribution. Lorsque l'indicateur pour lequel l'automatisation est réglée est atteint, l'appareil s'éteint. La consommation d'eau provient de la réserve de l'hydroaccumulateur. La réduction du volume de liquide entraîne une chute de pression et un redémarrage de la pompe. Le fonctionnement de l'accumulateur hydraulique est contrôlé par un pressostat.
La fonction principale de la pression dans l'accumulateur est de créer des conditions optimales pour le fonctionnement de la station de pompage. La pression d'air exclut l'inclusion et la mise hors tension du mécanisme après chaque ouverture de la grue. L'installation d'un réservoir de stockage dans le système d'alimentation en eau résout d'autres problèmes:
- Prévention des changements brusques de pression dans la canalisation (coups de bélier), causant des dommages aux tuyaux et aux mélangeurs.
- Prolonger la durée de vie des équipements de pompage, prévenir l'usure des pièces et des assemblages.
- Création d'une réserve d'eau à l'intérieur du réservoir, qui est utilisée en cas de panne de courant.
Le choix du volume du réservoir dépend de la puissance et du type de pompe. Les unités avec convertisseur de fréquence intégré se caractérisent par un démarrage progressif. Pour eux, un réservoir d'une contenance minimale (24 l) est suffisant. L'absence de mécanismes est coûteuse, ils sont rarement utilisés dans les ménages privés. Une option courante est les pompes de forage économiques, qui offrent une puissance maximale au démarrage. Ils créent rapidement une haute pression dans les canalisations. Le réservoir à membrane devrait compenser cela.
Types d'accumulateurs
Les accumulateurs hydrauliques sont utilisés dans les systèmes de chauffage, d'eau froide et d'eau chaude.
Les chars diffèrent par leur taille, leur objectif et leur exécution. La conception et la fonction des réservoirs restent inchangées.
Sur rendez-vous:
- pour eau chaude (rouge);
- pour l'eau froide (bleu).
La différence entre les réservoirs de stockage réside dans le matériau à partir duquel la membrane est fabriquée. Dans le récipient destiné à l'eau potable (froide), du caoutchouc sans danger pour la santé humaine est utilisé.
Par exécution :
- modèles verticaux - utilisés pour un espace limité ;
- la version horizontale est utilisée avec une pompe externe fixée sur le corps.
Chaque type d'appareil est équipé d'un dispositif spécial pour purger l'air. Une vanne est installée dans la partie supérieure des réservoirs hydrauliques verticaux. L'air accumulé est libéré à travers celui-ci, empêchant la formation d'embouteillages dans le système. Les réservoirs horizontaux ont un tuyau et un robinet à tournant sphérique.Le drainage est effectué à l'égout. Dans les réservoirs d'un volume inférieur à 100 litres, les vannes et les unités de vidange ne sont pas installées. L'air est évacué lors de la maintenance préventive.
Avantages et inconvénients de l'AT

Les dimensions TA sont impressionnantes
Commençons par les avantages d'utiliser un ballon de stockage d'eau chaude et de chauffage :
- stabilité de la température dans le circuit ;
- l'économie de carburant;
- réduction du nombre de chargements de combustible dans la chaudière ;
- le réchauffeur réalise pleinement son potentiel de puissance ;
- la possibilité d'économiser si une chaudière électrique fait office de chauffage;
- chauffage simultané du caloporteur dans le circuit de chauffage et de l'eau chaude.
Il n'y a rien qui n'ait ses défauts. Idem avec les dissipateurs thermiques.
- prendre beaucoup de place;
- sont chers;
- besoin d'une chaudière plus puissante.
Tout le monde comprend que chaque entreprise doit être bien menée et efficacement, en respectant de préférence toutes les règles. Dans la pratique, malheureusement, ce n'est pas toujours possible. Ici, vous devez compter l'argent, car tout repose toujours sur eux. L'utilisation de réservoirs tampons permet réellement de réduire les coûts de carburant et de stabiliser la température dans le circuit. Dans le même temps, vous devrez d'abord acheter une chaudière deux fois plus puissante, ce qui, bien sûr, est plus cher, et acheter l'accumulateur de chaleur lui-même, qui n'est pas non plus bon marché. Vous pouvez faire des achats progressivement, d'abord faire un circuit sans ballon de stockage, puis l'acheter au fur et à mesure si l'envie ne disparait pas. Dans ce cas, il faudra corriger légèrement la disposition des tuyaux de chauffage.
Intéressant sur le sujet :
- Remplacement des tuyaux de chauffage
- Quel radiateur choisir
- L'utilisation de boîtes dans le système de chauffage
- Caractéristiques du chauffage des locaux industriels
Réalisation de travaux de raccordement et de mise en place d'un pressostat pour un accumulateur hydraulique
Bien que de nombreuses personnes trouvent le processus de montage et de réglage de l'appareil difficile à comprendre, en fait ce n'est pas le cas. Chaque propriétaire d'une maison de campagne avec un puits ou un puits peut connecter et configurer indépendamment un appareil pour alimenter le bâtiment en eau.

L'un des schémas de connexion de l'accumulateur au système
Schéma standard de connexion d'un pressostat à un accumulateur hydraulique
Le produit fini interagit à la fois avec la plomberie et les systèmes électriques du bâtiment. Lors de la fermeture et de l'ouverture des contacts, du liquide est fourni ou bloqué. Le dispositif de pression est installé en permanence, car il n'est pas nécessaire de le déplacer d'un endroit à l'autre.

Le but des groupes de contact de l'appareil est indiqué
Pour la connexion, il est recommandé d'allouer une ligne électrique séparée. Directement du blindage doit être un câble avec une section de noyau en cuivre de 2,5 mètres carrés. mm. Il n'est pas recommandé de connecter des fils sans mise à la terre, car la combinaison de l'eau et de l'électricité présente un danger caché.

Schéma visuel pour connexion indépendante du relais
Les câbles doivent être passés à travers les trous situés sur le boîtier en plastique, puis connectés au bornier. Il contient des bornes pour la phase et le zéro, la mise à la terre, des fils pour la pompe.
Réglage correct du pressostat d'accumulateur
Pour régler l'appareil, un manomètre précis est nécessaire pour déterminer la pression sans erreur. En vous concentrant sur ses lectures, vous pouvez effectuer un réglage relativement rapide. En tournant les écrous situés sur les ressorts, vous pouvez réduire ou augmenter la pression. Lors de la configuration, vous devez suivre une certaine séquence d'actions.

Des travaux sont en cours pour mettre en place le dispositif
Ainsi, le réglage du pressostat pour l'accumulateur s'effectue comme suit.
- Le système s'allume, après quoi, à l'aide d'un manomètre, les indicateurs sont surveillés auxquels l'appareil est allumé et éteint;
- Tout d'abord, le ressort de niveau inférieur, qui est grand, est ajusté. Pour le réglage, une clé ordinaire est utilisée.
- Le seuil défini est en cours de test. Si nécessaire, le paragraphe précédent est répété.
- Ensuite, l'écrou est tourné pour le ressort, ce qui vous permet de régler le niveau de pression supérieur. Il a une taille plus petite.
- Le fonctionnement du système est entièrement testé. Si, pour une raison quelconque, les résultats ne sont pas satisfaisants, une reconfiguration est effectuée.

Les écrous de réglage de l'appareil sont représentés
À quelle vitesse les réserves d'énergie sont épuisées
Le ballon d'accumulation pour le système de chauffage, inclus dans le circuit, chauffe les locaux lorsque la chaudière est éteinte, il n'est pas nécessaire de chauffer la chaudière en permanence, tout en économisant du carburant jusqu'à 30 - 50%.
La durée de consommation de chaleur d'appoint dépend des facteurs suivants.
- Tailles de réservoir de capacité.
- Températures de l'espace d'air à l'intérieur et à l'extérieur de la pièce.
- Perte de chaleur.
- Automatisation "intelligente".
- Dépense de consommation.
Le chauffage chaudière éteinte dure plusieurs heures, soit deux à trois jours.
Lien accumulateur de chaleur pour chaudière à combustible solide ne permet pas à l'énergie thermique de "s'envoler dans le tuyau". La chaleur s'accumule à l'intérieur du réservoir. Avec les équipements d'automatisation, l'approvisionnement en chaleur est dépensé de manière économique pour le chauffage des radiateurs, le chauffage par le sol et l'approvisionnement en eau.
S'il existe un tarif préférentiel de nuit pour l'électricité, la batterie est chargée la nuit.

Afin de créer vous-même une chaufferie dans la maison, vous devez réfléchir à de nombreux détails.
1000 l. l'énergie thermique est suffisante pour 11 à 12 heures de jour pour une pièce de 150 mètres carrés. M. Il s'agit d'un apport de chaleur de secours efficace et économique avec une différence de tarifs.
Comment configurer le système pour 50 litres?
Après les calculs, il est nécessaire de mesurer l'indicateur de pression atmosphérique à l'intérieur de la station, dont la valeur ne doit pas dépasser 1,5 atm.
C'est cet indicateur qui fournira une bonne pression d'eau. Plus le paramètre est grand, moins l'eau peut couler.
Pour la mesure, vous pouvez utiliser un manomètre pour une voiture, ce qui permet de calculer l'indicateur avec le moins d'imprécision.
Après avoir déterminé la pression d'air, il faut:
- Démarrer la pompe pour établir la pression dans le système.
- Déterminez à quel point du manomètre l'arrêt se produit.
- Réglez l'interrupteur pour désactiver le mécanisme.
- Ouvrez le robinet pour que l'accumulateur se débarrasse de l'humidité et fixez l'indicateur.
- Monter le petit ressort sous les seuils formés.
| Indice | Action | Résultat |
| 3.2-3,3 | Rotation de la vis sur un petit ressort jusqu'à ce que le moteur soit complètement éteint. | Diminution de l'indicateur |
| Moins de 2 | Ajouter de la pression | Augmentation de l'indicateur |
La valeur recommandée est de 2 atmosphères.
En adhérant à ces recommandations, des indicateurs acceptables du système d'approvisionnement en eau peuvent être établis.
Pression optimale à l'intérieur du réservoir hydraulique
Tout accumulateur à l'intérieur a une membrane en caoutchouc qui divise l'espace en deux chambres. L'un contient de l'eau et l'autre contient de l'air comprimé. Grâce à cette structure, il est possible de créer la pression nécessaire lors du remplissage et de la vidange du récipient en caoutchouc.

Le dispositif de l'accumulateur hydraulique est clairement indiqué
Pour prolonger la durée de vie de l'appareil, vous devez savoir quelle pression doit être dans l'accumulateur. Cela dépend en grande partie des indicateurs réglés pour allumer la pompe. La pression à l'intérieur du réservoir devrait être inférieure d'environ 10 %.

Vérification de la pression du réservoir
Par exemple, si l'allumage est réglé sur 2,5 bars et l'arrêt sur 3,5 bars, la pression d'air à l'intérieur du réservoir doit être réglée sur 2,3 bars. Les stations de pompage prêtes à l'emploi ne nécessitent généralement pas de réglage supplémentaire.
Étapes d'installation à faire soi-même pour un hydroaccumulateur pour les systèmes d'alimentation en eau
Les travaux d'installation de l'accumulateur acheté s'effectuent en plusieurs étapes. La première chose à faire est de vérifier la pression dans la chambre à air. Cela se fait simplement, à l'aide d'une pompe automobile ou d'un compresseur équipé d'un manomètre. La pression est rendue légèrement supérieure à la vitesse à laquelle la pompe se met en marche. Le niveau supérieur est défini à partir du relais et est défini une atmosphère au-dessus du niveau primaire.
Ensuite, vous devez décider du schéma d'installation.

Choisir un schéma de raccordement de réservoir hydraulique
Le plus pratique est le schéma de connexion d'un accumulateur hydraulique avec un collecteur à cinq broches. L'installation est effectuée conformément au schéma figurant dans la documentation technique. Un collecteur à cinq sorties est vissé au raccord de l'accumulateur. Les 4 sorties restantes du collecteur sont occupées par un tuyau de la pompe, l'alimentation en eau de l'habitation, un relais de commande et un manomètre. S'il n'est pas prévu d'installer un appareil de mesure, la cinquième sortie est mise en sourdine.
Raccordement de l'accumulateur au système d'alimentation en eau
Après avoir assemblé tous les nœuds, la pompe (si le système est équipé d'une pompe submersible) ou le tuyau (si la pompe est de surface) est d'abord descendu dans le puits ou le puits. La pompe est alimentée. C'est en fait tout.

Important! Toutes les connexions sont réalisées avec du ruban FUM ou du lin enroulé. Il faut comprendre que la pression dans le système sera assez élevée. Cependant, il ne faut pas non plus faire trop de zèle, tout est bon avec modération.
Sinon, il y a un risque de casser les écrous des raccords.
Cependant, il ne faut pas non plus faire trop de zèle, tout est bon avec modération. Sinon, il y a un risque de casser les écrous des raccords.
Après avoir traité l'installation, vous pouvez passer à la question du remplacement de la membrane, qui échoue souvent dans les modèles à disposition verticale. Ici, nous allons faire une instruction étape par étape avec des exemples de photos.
| Exemple de photos | Mesure à prendre |
|---|---|
![]() | Tout d'abord, nous dévissons les boulons de la bride du réservoir hydraulique démonté. Ils sont enveloppés "dans le corps" ou serrés avec des écrous - selon le modèle. |
![]() | Lorsque les boulons sont sortis, la bride peut être facilement retirée. Mettons-le de côté pour l'instant - pour retirer la poire défaillante, vous devez dévisser un écrou de plus. |
![]() | Développez le conteneur. À l'arrière se trouve un mamelon de purge. L'écrou doit également être retiré. Il peut y en avoir deux, dont l'un sert de contre-écrou. Cela se fait avec une clé de 12. |
![]() | Maintenant, avec un petit effort, la poire est tirée à travers le grand trou sur le côté de la bride. |
![]() | Nous déposons une nouvelle poire, nous en expulsons l'air. Cela est nécessaire pour faciliter son installation dans le réservoir. |
![]() | Après avoir plié quatre fois en longueur, nous l'avons mis complètement dans le conteneur, y compris la partie qui était à l'extérieur lors du démontage. Ceci est fait pour qu'il soit possible d'introduire le mamelon dans le trou qui lui est destiné. |
![]() | La prochaine étape n'est pas pour les personnes ayant un physique complet. Des artisans expérimentés disent que pour installer le mamelon de l'accumulateur en place, vous devez parfois appeler votre femme à l'aide - disent-ils, sa main est plus fine. |
![]() | Une fois dans le trou, il faut impérativement faire un écrou pour que lors du montage ultérieur il ne remonte pas. Dans ce cas, vous devrez tout recommencer. |
![]() | Nous redressons le siège de poire et serrons les écrous sur le mamelon. L'affaire reste mince... |
![]() | ... - mettre la bride en place et serrer les boulons. Lors du serrage, ne soyez pas zélé sur une vis. Après avoir légèrement resserré tout, nous commençons à parcourir le système d'unités opposées. Cela signifie qu'avec six boulons, l'ordre est le suivant - 1,4,2,5,3,6. Cette méthode est utilisée dans les magasins de pneus pour tirer les roues. |
Maintenant, il vaut la peine de traiter plus en détail de la pression nécessaire.
Quelle pression devrait être dans l'accumulateur: nous vérifions l'opérabilité du système
Les réglages d'usine des réservoirs hydrauliques impliquent une pression de tarage de 1,5 atm. Cela ne dépend pas du volume du réservoir. En d'autres termes, la pression d'air dans un accumulateur de 50 litres sera la même que dans un réservoir de 150 litres. Si les réglages d'usine ne conviennent pas, vous pouvez réinitialiser les indicateurs sur des valeurs qui conviennent au maître de maison.
Très important! Ne surestimez pas la pression dans les accumulateurs (24 litres, 50 ou 100 - peu importe). Ceci est lourd de défaillance des robinets, des appareils électroménagers, de la pompe. 1,5 atm., installé en usine, non prélevé au plafond
Ce paramètre est calculé sur la base de nombreux tests et expériences.
1,5 atm., installés en usine, ne sont pas prélevés au plafond. Ce paramètre est calculé sur la base de nombreux tests et expériences.

Vases d'expansion avec poire en caoutchouc
Le remplacement d'une poire dans un accumulateur hydraulique pour 20, 24, 50, 80 et 100 litres se fait de la même manière.
Les accumulateurs hydrauliques sont des dispositifs de stockage d'énergie. Comme les batteries dans les systèmes électriques, elles stockent et déchargent l'énergie sous forme de liquide sous pression.
L'accumulateur lui-même est un récipient sous pression qui contient du fluide hydraulique et un gaz compressible, généralement de l'azote. Le corps ou la coque est en acier et en aluminium, en titane et en matériaux composites renforcés de fibres. Une vessie en caoutchouc mobile à l'intérieur du corps sépare l'eau du gaz.

Dans ces unités hydropneumatiques, les fluides sont légèrement comprimés sous pression. Mais les gaz sont comprimés en plus petits volumes sous haute pression, et les ingénieurs utilisent cette propriété dans la conception de vases d'expansion pour la plomberie. L'énergie potentielle est stockée dans le gaz comprimé et libérée à la demande pour forcer le liquide hors de la batterie et dans l'approvisionnement en eau de la maison.
La pompe hydraulique met le système sous pression et force le fluide dans l'accumulateur. La poire du vase d'expansion gonfle et comprime le volume de gaz, et la batterie emmagasine de l'énergie.
L'injection d'eau s'arrête lorsque la pression du système et le gaz sont équilibrés. Lorsque l'eau s'écoule d'un robinet ou d'une douche, la pression dans le système hydraulique chute et l'accumulateur libère le liquide sous pression accumulé dans le circuit. Et le cycle de charge recommence.
Les foreurs recommandent les accumulateurs à diaphragme en caoutchouc comme les meilleurs vases d'expansion. Ils sont fabriqués dans des tailles standard (24, 50, 80, 100 litres). Selon la conception, vous pouvez remplacer vous-même la poire dans l'accumulateur en cas de panne ou d'endommagement du réservoir.

Comment régler correctement la pression dans l'accumulateur
Réglage du pressostat
Le bon fonctionnement de la station de pompage nécessite le réglage correct de trois paramètres principaux :
- La pression à laquelle la pompe se met en marche.
- Le niveau d'arrêt d'une unité en fonctionnement.
- Pression d'air dans le réservoir à membrane.
Les deux premiers paramètres sont contrôlés par le pressostat. L'appareil est installé sur le raccord d'entrée de l'accumulateur. Son réglage se fait de manière empirique, pour réduire l'erreur de l'action, il est effectué plusieurs fois. La conception du relais comprend deux ressorts verticaux. Ils sont plantés sur un axe métallique et fixés avec des écrous. Les pièces diffèrent par leur taille : un grand ressort contrôle l'activation de la pompe, un petit est nécessaire pour régler la différence entre la pression supérieure et la pression inférieure. Les ressorts sont reliés à une membrane qui ferme et ouvre les contacts électriques.
Le réglage s'effectue en tournant l'écrou avec une clé. La rotation dans le sens des aiguilles d'une montre comprime le ressort et augmente le seuil de mise en marche de la pompe. Tourner dans le sens inverse des aiguilles d'une montre affaiblit la pièce et réduit le paramètre d'actionnement. La procédure d'ajustement se déroule selon un certain schéma:
- La pression d'air dans le réservoir est vérifiée, si nécessaire, elle est pompée par le compresseur.
- Le grand écrou à ressort tourne dans le bon sens.
- Le robinet d'eau s'ouvre. La pression chute, à un certain moment la pompe se met en marche. La valeur de pression est indiquée sur le manomètre. Si nécessaire, la procédure est répétée
- La différence de performances et la limite d'arrêt sont régulées par un petit ressort. Il est sensible au réglage, la rotation s'effectue donc d'un demi ou d'un quart de tour.
- L'indicateur est déterminé avec les robinets fermés et la pompe en marche. Le manomètre indiquera la valeur à laquelle les contacts s'ouvriront et l'appareil s'éteindra.S'il est de 3 atmosphères et plus, le ressort doit être desserré.
- Vidanger l'eau et redémarrer l'appareil. La procédure est répétée jusqu'à ce que les paramètres requis soient obtenus.
Les réglages d'usine du relais sont pris comme base. Ils sont indiqués dans le passeport de l'appareil. L'indicateur de démarrage moyen de la pompe est de 1,4 à 1,8 bar, les arrêts sont de 2,5 à 3 bar.
Éléments de travail de l'appareil et fonctionnement
Du point de vue des caractéristiques de conception, le relais est une petite unité équipée de ressorts spéciaux. Le premier d'entre eux définit la limite de pression maximale et le second définit le minimum. Le réglage s'effectue au moyen des écrous auxiliaires placés dans le boîtier.

Familiarisation avec la structure interne de l'appareil
Les ressorts de travail sont reliés à la membrane, qui réagit d'une manière ou d'une autre aux coups de bélier. Le dépassement des valeurs maximales entraîne une compression de la spirale métallique et une diminution entraîne un étirement. Grâce à un tel dispositif, dans le groupe de contacts, les contacts sont fermés et ouverts à un certain moment.

L'emplacement de l'appareil dans le schéma général
Le principe de fonctionnement du pressostat pour l'accumulateur est le suivant. L'eau pénètre dans le réservoir à membrane jusqu'à ce qu'il soit complètement rempli, ce qui entraîne une augmentation de la pression. Lorsque le niveau maximum autorisé est atteint, la pompe arrête de pomper du liquide.
Au fur et à mesure que l'eau coule, la pression dans le système chute. Lorsque le niveau inférieur est dépassé, l'équipement se rallume. Les cycles d'allumage et d'extinction se répètent encore et encore jusqu'à ce que les éléments du système soient en état de marche.

Schéma de connexion avec une vanne de vidange dans le système
Typiquement, un relais se compose des éléments suivants :
- étuis en plastique;
- membrane en caoutchouc;
- piston en laiton;
- couverture membranaire;
- goujons filetés;
- plaque de métal;
- raccords pour la fixation de câbles;
- blocs pour terminaux;
- plate-forme articulée ;
- ressorts de réglage;
- nœud de contact.

Un manomètre peut être utilisé pour déterminer visuellement la pression
Comment changer une ampoule dans un réservoir d'eau sous pression
Un accumulateur de pression avec une membrane interne en caoutchouc est un moyen d'alimenter en eau un système de plomberie. Lorsque le robinet est ouvert, la pression dans le réservoir pousse l'eau hors du sac et la pompe est inactive. La pompe ne fonctionne que pour remplir le réservoir jusqu'à la pression réglée.
La mise en marche fréquente de la pompe ou des problèmes de faible pression d'eau entraînent des dysfonctionnements et le remplacement de la poire en caoutchouc dans l'accumulateur.
Débrancher l'eau et l'électricité de la pompe.
Ouvrez la vanne la plus proche de l'accumulateur pour vidanger l'eau et relâcher la pression dans le système.
Débranchez le réservoir du système de plomberie et vidangez toute l'eau restante.
Retirez les écrous qui maintiennent la bride du couvercle en place. Retirer la bride du couvercle.
Retirer le sac en caoutchouc de l'accumulateur endommagé
Retirez le joint de jante en caoutchouc du bord de l'accumulateur et retirez-le par le trou.
L'installation d'une membrane dans un accumulateur hydraulique demande de la prudence. Installez la nouvelle membrane en roulant et en glissant à travers le trou du réservoir.
Appuyez fermement sur les bords de la poire contre l'ouverture du réservoir.
Replacez la bride du couvercle en veillant à ce qu'elle n'appuie pas contre le bord de la poire en caoutchouc de l'accumulateur, ce qui l'endommagerait.
Serrer les écrous pour maintenir la bride en place
Veillez à ne pas trop les serrer et à ne pas endommager la bride.
Retirez le capuchon de la valve à air et chargez le réservoir à la bonne pression. Vérifiez s'il y a des fuites autour de la bride. Serrez le capuchon de la valve à air.
Installez le réservoir en place dans le système de plomberie. Ouvrez l'alimentation en eau et rebranchez l'alimentation de la pompe. Surveillez la nouvelle installation pour toute fuite.
Vidéo sur le sujet du changement d'une poire dans un accumulateur hydraulique avec un mamelon Gilex d'une durée de 6,47 minutes :
Comment vérifier la membrane dans l'accumulateur pour les fuites
La durée de vie de la membrane de l'accumulateur est de 6 à 8 ans.
Signes de fuite :
- L'eau évacuée du réservoir va avec l'air. Le principe de fonctionnement de l'accumulateur ne permet pas le mélange de liquide et de gaz. Si cela se produit, la poire de l'accumulateur doit être remplacée.
- Un mélange d'air et d'eau sort de la tétine. Lorsque vous retirez la membrane, vérifiez s'il y a de l'eau à l'intérieur du réservoir. Si le réservoir est sec, la poire est intacte et il y a un problème d'étanchéité à l'intérieur du mamelon lui-même.
- L'eau du robinet change radicalement de température.
- Allumage et arrêt cycliques de la pompe.
- La condensation sur le réservoir dans une pièce chaude indique que les parois internes, au lieu de l'air, sont en contact avec l'eau froide du puits.
La position de montage optimale pour tout accumulateur est verticale, avec l'ouverture hydraulique vers le bas.
Lorsque des contaminants solides pénètrent dans l'alimentation en eau, l'installation horizontale contribue à une usure inégale ou accélérée de la membrane.
Il y a une usure inégale de la poire, car elle frotte le haut du corps, flottant dans le liquide. Le degré d'endommagement dépend de la propreté du fluide, de la vitesse du cycle et du taux de compression (défini comme la pression maximale dans le système / au minimum).
Le principe de fonctionnement du pressostat
Un système d'approvisionnement en eau autonome dans une maison privée se compose de conduites d'eau, d'une pompe et d'éléments de commande et de nettoyage. L'accumulateur hydraulique qu'il contient joue le rôle d'un dispositif de contrôle de la pression de l'eau. Celle-ci est d'abord stockée dans la batterie, puis, si nécessaire, elle est consommée à l'ouverture des robinets.
Cette configuration du système d'alimentation en eau permet de réduire le temps de fonctionnement de la station de pompage, ainsi que le nombre de ses cycles "on / off".
Le pressostat remplit ici la fonction de commande de la pompe. Il surveille le niveau de remplissage de l'accumulateur avec de l'eau, de sorte que lorsque ce réservoir est vide, il active le pompage du liquide de la prise d'eau à temps.
Les éléments principaux du relais sont deux ressorts pour le réglage des paramètres de pression, une membrane sensible à la pression de l'eau avec un insert métallique et un groupe de contact 220 V
Si la pression de l'eau dans le système se situe dans les paramètres définis sur le relais, la pompe ne fonctionne pas. Si la pression descend en dessous du réglage minimum Pstart (Pmin, Ron), alors un courant électrique est fourni à la station de pompage pour la faire fonctionner.
De plus, lorsque l'accumulateur est rempli jusqu'à Рstop (Pmax, Рoff), la pompe est mise hors tension et arrêtée.
De proche en proche, le relais en question fonctionne comme suit :
- Il n'y a pas d'eau dans l'accumulateur. La pression est inférieure à Pstart - réglée par un gros ressort, la membrane du relais se déplace et ferme les contacts électriques.
- L'eau commence à couler dans le système. Lorsque Rstop est atteint, la différence entre les pressions supérieure et inférieure est réglée par un petit ressort, la membrane se déplace et ouvre les contacts. En conséquence, la pompe cesse de fonctionner.
- Quelqu'un dans la maison ouvre un robinet ou allume une machine à laver - il y a une diminution de la pression dans l'alimentation en eau.De plus, à un moment donné, l'eau dans le système devient trop petite, la pression atteint à nouveau Rpusk. Et la pompe se rallume.
Sans pressostat, toutes ces manipulations avec mise en marche/arrêt de la station de pompage devraient se faire manuellement.
La fiche technique du pressostat pour accumulateurs indique les réglages d'usine sur lesquels les ressorts de commande sont initialement réglés - presque toujours, ces réglages doivent être modifiés pour des réglages plus appropriés
Lors du choix du pressostat en question, il faut tout d'abord regarder :
- la température maximale de l'environnement de travail - pour l'eau chaude et le chauffage, leurs propres capteurs, pour l'eau froide, les leurs;
- plage de réglage de la pression - les réglages possibles de Pstop et Rpusk doivent correspondre à votre système spécifique ;
- courant de fonctionnement maximal - la puissance de la pompe ne doit pas être supérieure à ce paramètre.
Le réglage du pressostat en question est effectué sur la base de calculs, en tenant compte de la capacité de l'accumulateur, de la consommation d'eau ponctuelle moyenne des consommateurs de la maison et de la pression maximale possible dans le système.
Plus la batterie est grande et plus la différence entre Rstop et Rstart est grande, moins la pompe s'allumera souvent.























































