- De quoi aura-t-on besoin ?
- Critère
- Nous fabriquons un support de nos propres mains
- Les principaux types de supports TV
- Support TV mural pivotant rétractable
- Support TV de type inclinable et pivotant
- Support mural pour téléviseur d'angle
- Le choix des matériaux pour la fabrication du support
- Pourquoi?
- Fabriquez votre propre support
- Option # 2 - poêle à ventre fait maison
- Et enfin, l'antenne TV numérique la plus complexe que vous puissiez fabriquer vous-même
- Les canettes de bière (de Pepsi-Cola conviennent également)
- écran LCD
- De quoi peut être fait le support ?
- Recommandations
- Options de conception maison : principes généraux
- "Huit", elle est un losange, elle est aussi en forme de "Z"
- support
- Types de supports
- 2 Structures de supports muraux fixes
- Types de supports
De quoi aura-t-on besoin ?
Avant de commencer l'assemblage et l'installation, vous devez trier correctement toutes les tâches par ordre d'importance, puis sélectionner le matériel approprié. Tout d'abord, cela dépendra d'un certain nombre d'éléments clés :
- le montant que vous attendez;
- fiabilité de conception ;
- masse du récepteur de télévision ;
- méthode de fixation;
- le matériau dont sont faits les murs.

Il existe un nombre suffisant de façons d'assembler le support.Le choix dépend uniquement de votre imagination. Si vous le souhaitez, vous pouvez concevoir un design original en décorant le style de la pièce même avec cet élément insignifiant.

Les principales options nécessiteront que vous disposiez d'outils et de matériaux qu'il est préférable de stocker à l'avance.
- Coins métalliques. Pour ce faire, vous pouvez utiliser des plaques ordinaires pliées à un angle de 90 degrés.
- Poignée de support. Il peut être rendu mobile pour un changement de position sans entrave. Il doit également être en métal solide, capable de supporter la charge du téléviseur.
- Dalle en bois à partir d'un panneau solide ou d'un panneau de particules, de panneaux de fibres de bois, de panneaux de particules. Il est utilisé pour la fixation la plus durable du boîtier du téléviseur au support.
- Fixations spécialisées au mur.
- Vis autotaraudeuses, boulons, chevilles.
- Perceuse électrique.
- Perforateur.
- Forets pour le bois et le fer.
De plus, il est nécessaire de calculer la taille de la zone de localisation et la structure proposée. Dans l'option où il y aura un support mobile, vous devez également prendre en compte l'espace pour son mouvement sans entrave. Pour faciliter l'assemblage, il est recommandé de dessiner vous-même un dessin avec des paramètres exacts sur papier, afin de pouvoir ensuite naviguer le long de celui-ci.


Critère
Avant de commencer à fabriquer un vieux téléviseur de vos propres mains, vous devez prendre en compte la décision de plusieurs critères importants. Dont dépendent la fluidité de l'image, la qualité de l'image et la saturation des couleurs du cadre. Ces facteurs comprennent :
- temps de réponse du signal ;
- angle de vision (pour la plupart des écrans modernes, il est extrêmement petit ; et si l'angle de vision n'est pas respecté, l'image devient trouble ou assombrie) ;
- éclairage de la pièce (les capteurs sensibles des écrans d'ordinateur nécessitent un éclairage plutôt faible dans la pièce, sinon l'image sur l'écran sera pâle);
- la profondeur des tons sombres (qui, malheureusement, est extrêmement faible pour les moniteurs d'ordinateurs personnels et n'est pas en mesure de transmettre toute la profondeur du noir dans le cadre d'un film télévisé);
- niveau de contraste (significativement différent entre ces deux types d'appareils ; le fait de ne pas maintenir les paramètres de contraste corrects peut causer de graves dommages aux yeux du spectateur).
Nous fabriquons un support de nos propres mains
Si vous n'allez pas changer sa position pendant le fonctionnement du téléviseur, vous pouvez créer vous-même un support TV simple et peu coûteux sur le mur.
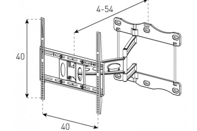
Pour monter un appareil avec un écran de 32 ou 42 pouces, il vous faudra préparer 4 coins en aluminium ou en acier (servant à la fabrication d'un support TV) et 1 rayon de vélo. Il est recommandé d'utiliser un coin en aluminium, car il est plus facile à manipuler. Les dimensions des segments ne sont pas importantes, l'essentiel est que les trous sur le corps de l'appareil et sur le coin correspondent.

Faites 2 trous dans les détails pour la fixation à l'unité et dans la partie supérieure - un à la fois, pour l'aiguille à tricoter. Fixez les pièces finies au corps du récepteur TV (à l'aide de vis M4) Le reste de la paire de pièces doit être fixé au mur.
Tout d'abord, vous devez y percer 2 trous pour la fixation au mur (ou plus, en fonction de la taille de la diagonale de l'appareil et de son poids) et un trou dans la partie supérieure de la partie pour insérer l'aiguille à tricoter.

Après cela, des marques sont faites sur le mur à travers les trous pratiqués.Tous les trous en 4 parties doivent être situés strictement en face l'un de l'autre afin d'éviter la déformation de l'appareil après l'installation.
La distance entre les coins doit être légèrement inférieure à celle entre les mêmes pièces sur l'unité, de sorte que ces dernières s'enroulent autour des coins du mur de l'extérieur (lorsque vous placez le support TV sur le mur, il est recommandé d'utiliser le niveau du bâtiment pour positionner les pièces horizontalement)

.Maintenant, vous pouvez accrocher le téléviseur au mur. Pour ce faire, vous devez soulever votre unité de 42 pouces et aligner les supports comme indiqué sur la figure, après quoi vous devez insérer un rayon.
S'il n'y a pas d'aiguille à tricoter, elle peut être remplacée par un clou avec un chapeau. Pour les machines plus lourdes, utilisez des clous plus épais, par exemple 100 mm de long. À ce stade, le montage du téléviseur au mur de vos propres mains est terminé.
Avant de fixer le téléviseur au mur, vous devez déterminer la largeur des coins.

Il doit être tel qu'il assure une ventilation normale entre le mur et le récepteur TV. Dans le cas contraire, votre téléviseur 42 pouces surchauffera, ce qui affectera sa durée de vie. Tous les fils, électriques et d'antenne, peuvent être cachés dans le canal câblé.
Les principaux types de supports TV
Support TV mural pivotant rétractable
Le support mural TV pivotant et coulissant est le plus pratique à utiliser. Il fournit le nombre maximum de degrés de liberté pour un écran plat.
Grâce à ce support, le panneau TV peut être fixé dans n'importe quelle position. De plus, le téléviseur lui-même peut :
Support TV de type inclinable et pivotant
Ce type de fixation permet de régler l'angle du panneau et de modifier sa position.Quelle que soit la pièce où se trouve le panneau, le support TV inclinable et pivotant vous permettra d'ajuster le plan de l'image verticalement ou horizontalement pour une visualisation confortable.
Tableau 2. Avantages et inconvénients des supports oscillo-battants
| La possibilité de régler confortablement l'écran | Difficultés lors des travaux d'installation |
| Sélection rapide de la position la plus confortable pour visualiser l'écran n'importe où dans la pièce | Grande distance entre le mur et le panneau |
| Vous permet d'installer le panneau LCD dans les coins et les zones résidentielles avec une disposition non standard | Prix de vente élevé. Le support a différentes limites de poids pour les panneaux |
Support mural pour téléviseur d'angle
Les supports d'angle permettent d'installer des panneaux TV dans les angles des pièces et de tout type de locaux. Leur conception rappelle à bien des égards les dispositifs rotatifs-coulissants.
Le téléviseur peut être monté sur un mur, et avec cet appareil, vous pouvez voir l'écran à partir de différentes positions dans la pièce. De tels modèles vous permettent de retirer le panneau et de vaquer à vos occupations sans craindre de blesser l'appareil. Ceci est particulièrement utile dans les espaces confinés.
Le choix des matériaux pour la fabrication du support
Ainsi, pour la fabrication d'un support pivotant sur lequel installer le téléviseur, nous avons besoin de:

Deux coins perforés avec nervures
Ceci est très important, car les coins pour fabriquer le support ne doivent pas se plier;
Plusieurs écrous, vis et rondelles M6 ;
Peinture aérosol.
Une attention particulière lors du choix des angles de montage doit être portée à leur épaisseur. Pour la fabrication du support, il est recommandé d'utiliser des coins d'une épaisseur d'au moins 2 mm
Comme mentionné ci-dessus, des raidisseurs doivent être présents dans les coins.

La taille des coins dépend des dimensions et du poids du téléviseur. Dans le même temps, plus les coins sont larges, plus le support fait maison sera meilleur et plus fiable. Pour installer un petit téléviseur, la largeur des coins pour la fabrication du support doit être d'au moins 65 mm, pour les téléviseurs plus grands, d'au moins 100 mm.
Pourquoi?
Toute personne lisant cet article se demande probablement déjà avec surprise qui et à quelles fins peut avoir besoin de fabriquer un téléviseur à partir d'un moniteur de ses propres mains. Après tout, l'ère de la pénurie est révolue pour toujours, dans n'importe quelle ville, il y a au moins une douzaine de magasins vendant toutes sortes d'appareils électroniques pour toutes les couleurs et tous les goûts. Pourquoi souffrir et faire de grands efforts pour faire une chose de deux bonnes choses séparément, et même de qualité douteuse ?
Il existe plusieurs réponses assez logiques à ces questions.
D'abord, c'est juste intéressant. Malgré le fait que la nécessité de faire quelque chose de nos propres mains a disparu à notre époque, il y a encore beaucoup de nostalgiques de l'époque de l'Union soviétique, quand ils devaient souder, étamer et scier presque tout eux-mêmes - de guitares électriques aux haut-parleurs. Il y a un sac avec des détails, il y a un ensemble d'outils. Tout, pensez plus loin et faites-le vous-même.
Deuxièmement, tout le monde n'a pas la possibilité d'acheter un nouveau moniteur coûteux pour regarder la télévision. Mais dans le garde-manger, peut-être, il y a un vieil écran d'ordinateur et plusieurs tableaux qui vous permettront de faire un assez bon téléviseur de vos propres mains.

Troisièmement, de telles opérations développent considérablement le cerveau et aident simplement à tuer le temps avec profit. Le résultat est évident: un produit fait maison intéressant est suspendu dans le garage, et le temps a été passé avec intérêt, et j'ai en quelque sorte appris quelque chose par moi-même, et j'ai même pris beaucoup de plaisir au travail!
Fabriquez votre propre support
Il existe de nombreuses façons de monter le téléviseur au mur de vos propres mains. Considérons l'un d'entre eux. Pour fabriquer votre propre support mural pour un téléviseur 32/42 pouces, vous aurez besoin de :
- 4 coins métalliques ;
- une aiguille à tricoter pour bicyclette ou un clou à grosse tête;
- chevilles en plastique;
- perceuse;
- boîte en plastique pour fils;
- niveau du bâtiment.
Pour fabriquer un support TV DIY fiable, choisissez les bons matériaux pour les attaches et les coins. Les coins en aluminium seront plus faciles à travailler. Décidez de la largeur de leurs côtés. Les coins définiront la distance séparant le luminaire du mur. Cette distance doit être suffisante pour une ventilation normale de la paroi arrière de l'appareil. Si l'appareil est mal ventilé, l'appareil surchauffera inévitablement et tombera rapidement en panne.
Choisissez des chevilles plus solides pour assurer le montage le plus fiable du téléviseur sur le mur. Si quelque chose ne va pas, le cardan s'effondrera avec le téléviseur.
Le processus de montage du téléviseur sur le mur:
- Percez 2 trous sur deux coins pour le montage sur le téléviseur. Assurez-vous que l'emplacement des trous correspond aux emplacements souhaités à l'arrière de la machine. La longueur des coins n'est pas aussi importante que la largeur. L'essentiel est que la longueur soit suffisante pour faire les trous nécessaires.Assurez-vous que tous les trous que vous faites sont situés strictement l'un en face de l'autre, sinon l'appareil se bloquera de travers.
- Dans la partie supérieure des coins, qui est perpendiculaire au côté de la fixation au téléviseur, faites un trou pour le rayon du vélo.
- Lorsque ces coins sont prêts, fixez-les au meuble TV avec des vis. Vous pouvez mettre des supports TV sur des vis M4.
- Prenez une autre paire de coins. Faites-y des trous pour fixer le téléviseur au mur, au moins deux. Calculez le nombre optimal de trous en fonction du poids de l'appareil. Pour les appareils lourds, plus de trous seront nécessaires, sinon un support TV fait maison ne résistera pas à la charge.
- Percez des trous pour un rayon de bicyclette de l'autre côté des coins, en haut.
- Faites une marque sur le mur en utilisant les trous dans les coins. La distance entre les coins doit être légèrement inférieure à celle entre les pièces fixées à l'arrière de l'appareil. Les coins du panneau doivent couvrir les coins du mur depuis les côtés extérieurs.
- Pour placer les pièces sur le mur de manière plus uniforme, utilisez le niveau du bâtiment. Si les marques ne sont pas assez droites, le téléviseur tombera du support. Peut-être que le mur sera également endommagé.
- Les chevilles en plastique sont pratiques pour fixer les coins en aluminium au mur.
- Soulevez l'appareil au niveau des coins et alignez les fixations.
- Enfilez le rayon du vélo dans les trous. Rappelez-vous que ces trous doivent être au même niveau les uns par rapport aux autres. L'aiguille peut être remplacée par des clous épais, dont la longueur est d'environ 100 mm. Pour empêcher les clous de sauter du support, ils doivent avoir un chapeau d'un diamètre supérieur à la taille des trous.
- Attache fixe.
Principe de fonctionnement similaire :
Une boîte en PVC est nécessaire pour retirer en toute sécurité les fils du téléviseur. Comment retirer le téléviseur de ce type de support mural ? Repliez le haut des clous, en soutenant doucement l'appareil coûteux par le bas ou les côtés.
Une autre méthode pour assembler un support TV de vos propres mains, sur un rail en bois et 4 crochets de suspension :
- Prenez un rail en bois d'une section de 3 à 10 cm et divisez-le en 2 segments égaux correspondant à la largeur de l'appareil. Si vous devez régler l'inclinaison lors du montage du téléviseur au mur, affinez le rail inférieur d'un centimètre et demi.
- Prenez 4 vis autotaraudeuses à tête annulaire. Vissez 2 vis aux extrémités des rails, pas trop près des bords.
- Utilisez une perceuse pour faire des trous dans les rails pour la fixation à l'appareil. Fixez les planches de bois à l'appareil.
- Marquez le mur. Il faudra faire des trous pour les anneaux aux extrémités des vis.
- Percez les trous requis.
- Fixez les crochets de suspension dans les trous.
- Comment accrocher un téléviseur au mur avec un support mural de votre propre fabrication ? Soulevez l'appareil et placez les anneaux sur les crochets. Le support mural pour votre appareil est prêt.
Comment retirer le téléviseur du support mural ? Soulevez simplement l'appareil pour que les crochets sortent des anneaux.
Option # 2 - poêle à ventre fait maison
Il est plus facile de fabriquer un four à faire soi-même pour un garage en métal, c'est-à-dire de fabriquer un poêle à ventre ordinaire. Pour ce faire, utilisez de la tôle, un tuyau métallique ou un tonneau. Il est plus facile de fabriquer une unité cubique à partir d'une tôle et, bien sûr, un poêle à ventre cylindrique se transformera en tuyau ou en baril. L'épaisseur du métal doit dans tous les cas être d'au moins 5 mm.Un tuyau métallique adapté à la fabrication d'un poêle à ventre doit être suffisamment large, d'au moins 300 mm de diamètre.

Pour fabriquer de vos propres mains un poêle à ventre pour un garage, vous aurez besoin de tôle ou d'un récipient en métal approprié, ainsi que d'un coin, de tuyaux et d'autres matériaux
Il est préférable d'organiser la sortie de la cheminée par le haut, mais il est parfois plus pratique de le faire depuis le mur arrière. Dans ce dernier cas, il faut veiller à ce que la pente de la cheminée soit d'au moins 30 degrés. Pour une évacuation efficace des gaz d'échappement, il est préférable d'utiliser un tuyau métallique d'un diamètre de 120 mm ou plus. Aux premiers mètres, la cheminée doit être suffisamment épaisse - 2-3 mm. Un matériau plus fin avec un chauffage constant brûlera rapidement.
Directement sous le foyer, un endroit doit être aménagé pour l'élimination des cendres. Pour ce faire, utilisez une plaque métallique horizontale avec des fentes. La taille des fentes dépend de la taille du poêle à ventre et du type de combustible. Pour un petit poêle à charbon de bois et un petit poêle à bois, les fentes doivent être de 10-12 mm, et pour un grand poêle à bois, les coupes doivent être d'au moins 40 mm.
Une boîte amovible est installée sous la cloison, qui est périodiquement nettoyée au fur et à mesure que les cendres s'accumulent. Pour la boîte, une tôle d'acier de trois millimètres est utilisée. Pour augmenter l'efficacité du poêle à ventre, des plaques métalliques de 5 mm d'épaisseur sont soudées perpendiculairement à ses côtés. Ainsi, la surface de contact de l'air avec l'unité de chauffage augmente et la pièce se réchauffe plus rapidement.
Lors de la découpe de tôle, l'épaisseur du matériau lui-même, ainsi que l'épaisseur du disque de meulage, doivent être prises en compte. Une version intéressante de la fabrication de poêles à ventre à partir de bouteilles de gaz est présentée dans la vidéo:
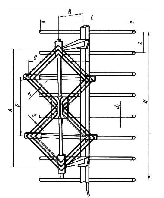
Et enfin, l'antenne TV numérique la plus complexe que vous puissiez fabriquer vous-même
Le schéma log-périodique vous permet d'obtenir le gain maximal sans circuits supplémentaires.

Le principe de fonctionnement de la conception: dans la direction de la source du signal, il y a deux pneus conducteurs, sur lesquels des vibrateurs perpendiculaires sont installés en séquence stricte. Leur longueur et leur distance entre eux sont calculées selon un algorithme strict. Une erreur de 2 à 5 % entraînera une inopérabilité complète du système. Mais une antenne correctement assemblée recevra un signal analogique et numérique de la plus haute qualité.
Peut être utilisé avec un écran qui aide à amplifier un signal faible.
Les canettes de bière (de Pepsi-Cola conviennent également)
Pourquoi ce matériau est-il si populaire ?
premièrement, les dimensions manquantes des segments sont compensées par une grande surface de réception : si vous transformez la boîte en avion, vous obtenez une feuille standard ;
deuxièmement, l'aluminium a une excellente conductivité, légèrement inférieure au cuivre : en conséquence, les pertes de résistance seront minimes ;
troisièmement, la forme aérodynamique réduit le vent (ce qui est particulièrement important lorsqu'il est placé dans la rue) et la légèreté du design ne nécessite pas de fixation particulièrement solide;
et, enfin, c'est une matière première abordable et absolument gratuite, de plus, l'aluminium laqué résiste parfaitement à l'influence de l'humidité.

Malgré la qualité de réception relativement élevée, cette conception n'a pas un gain intrinsèque élevé. La connexion d'un amplificateur standard peut n'avoir aucun effet, en raison de la complexité de la sélection des coefficients.
Matériel nécessaire :
- Deux canettes de bière identiques d'un litre, lavées et séchées. Dans les cas extrêmes, vous pouvez utiliser un demi-litre, mais la portée de réception sera réduite.
- Câble d'antenne RK-75 de la longueur requise (une conception avec une longueur de câblage de plus de 10 mètres ne fournira probablement pas une réception fiable).
- Fiche d'antenne qui correspond à votre téléviseur.
- Support de fixation en diélectrique pour la fixation des canettes: un bloc de bois, des cintres, un tuyau en plastique (métal-plastique ne fonctionnera pas).
- Attaches : ruban électrique, ruban adhésif ou pinces en plastique.
- Fer à souder, soudure standard, flux pour soudure aluminium.
- Couteau, pince coupante, papier de verre.
Cela n'a aucun sens de peindre les formules de calcul des tailles pour la fréquence de réception ; de toute façon, il ne sera pas possible de modifier les tailles des segments. L'antenne de canette de bière DIY a été testée à plusieurs reprises dans diverses conditions, alors utilisons simplement l'échantillon fini.
Nous avons coupé le câble d'antenne. Il y aura un bouchon à une extrémité, nous ouvrons l'autre extrémité de manière à ce que de la veine centrale à l'écran enroulé en faisceau était d'au moins 100 mm. Afin que la tresse "nue" ne soit pas exposée à la corrosion, elle peut être cachée dans du batiste thermorétractable.
Nous nettoyons les zones de soudure du câble: sur les extrémités supérieures des canettes. Le papier de verre fin est parfait pour cela.
Chaque extrémité du fil est pliée en un anneau de 3 à 5 mm de diamètre et soigneusement soudée. Ensuite, nous fixons le terminal résultant à la banque à l'aide d'une vis autotaraudeuse galvanisée. Après cela, nous nettoyons les joints avec un flux et une soudure, jusqu'à ce que la soudure "colle" normalement.
Nous fixons les banques (du point de vue de la théorie de la réception radio, ce sont maintenant des vibrateurs symétriques) de telle sorte qu'il y ait exactement 75 mm entre les extrémités avec le câble. C'est l'écart optimal pour recevoir la télévision analogique et numérique.

Une étape importante : régler le produit pour une réception optimale du signal TV. Très probablement, vous connaissez la direction de la tour du centre de diffusion. Sinon, les cartes Yandex vous aideront. Trouvez un centre TV, votre domicile, et passez une ligne droite virtuelle. Si vous ne voulez pas jouer avec l'azimut (c'est impossible sans boussole), déterminez la direction repère dans la ligne de mire. Par exemple, un tuyau de chaufferie ou un autre objet. Pour une réception fiable, l'antenne de télévision domestique est située strictement perpendiculairement au vecteur sur la tour et horizontalement.
Si le signal est reçu en toute confiance, vous avez de la chance la première fois. À une distance considérable de l'émetteur, vous pouvez capter le signal réfléchi. Même une simple antenne fabriquée à partir de canettes nécessite une orientation appropriée dans l'espace (bien qu'il ne s'agisse pas d'une antenne parabolique). Dans une zone de mauvaise réception, la technologie toutes ondes peut soudainement "tirer" dans n'importe quelle direction.
L'antenne décimètre "bière" à faire soi-même vous permet de capter en toute confiance les chaînes analogiques. Et comment faire antenne pour le numérique LA TÉLÉ? Aucun secret supplémentaire. La diffusion numérique s'effectue dans la même gamme. Si vous avez un tuner DVB-T2, vous pouvez syntoniser un ou deux multiplex et recevoir gratuitement un ensemble de chaînes russes sur des canettes de bière.
Schéma type dans l'illustration :

Cependant, pour souder et installer vous-même un tel appareil, des connaissances élémentaires en ingénierie radio sont nécessaires. Pourtant, il est plus facile d'acheter un appareil prêt à l'emploi, d'autant plus que vous avez déjà économisé sur l'antenne.
écran LCD
L'homme moderne se sent de plus en plus une partie de l'avenir, une partie du progrès en mouvement constant, donc ces choses qui jusqu'à récemment lui semblaient des nouveautés et un «miracle de la technologie» n'ont plus d'importance aujourd'hui. Ce sort est arrivé aux disques vinyles, disquettes, CD et DVD. Et maintenant, le temps est venu pour les ordinateurs de bureau. Et ce n'est pas surprenant. Qui a besoin de vieux ordinateurs personnels encombrants alors que tant d'entreprises différentes lancent des ordinateurs portables, des tablettes et des smartphones ultra-nouveaux, fins et légers avec des écrans larges, ainsi que des ordinateurs portables et des netbooks.
La plupart des utilisateurs avancés font depuis longtemps partie de la "communauté mobile", passant des ordinateurs aux gadgets nouveaux et modernes. Cependant, étant donné la mentalité des gens ordinaires, il est prudent de dire que non seulement les vieux PC n'ont pas été impitoyablement jetés à la poubelle, mais, très probablement, ils ont été soigneusement nettoyés, emballés et sont maintenant stockés dans des garde-manger.
À partir d'un ancien moniteur, vous pouvez créer un excellent téléviseur à faire soi-même qui, si vous effectuez tout le travail nécessaire avec une qualité élevée, peut durer de très nombreuses années.
Cependant, avant de commencer à créer un nouvel appareil à partir de plusieurs anciens, vous devez acheter quelques pièces supplémentaires :
Récepteur TV;

- séparateur, ainsi qu'un cordon pour connecter la télévision numérique multicanal;
- antenne;

câble pour le montage de l'antenne.
Après avoir acquis toutes les pièces ci-dessus, il vous suffit de connecter tous les appareils ensemble. Étant donné que les connecteurs qu'ils contiennent sont différents, il est tout simplement impossible de se tromper lors de l'installation.Si le téléviseur ne s'allume pas, les réparations à faire soi-même seront beaucoup moins chères et plus faciles, car les pièces de rechange pour un ordinateur sont beaucoup plus faciles à trouver en vente que les mécanismes obsolètes d'un téléviseur. Cela affectera également de manière significative la popularité d'un appareil fait maison parmi les pauvres.
De quoi peut être fait le support ?
Avant de procéder au montage et à l'installation, il est nécessaire de hiérarchiser correctement et de sélectionner le matériel approprié. Tout d'abord, cela dépendra de plusieurs composants principaux:
- Le coût que vous attendez.
- Résistance structurelle.
- Poids du téléviseur.
- Méthode de montage.
- Le matériau à partir duquel les murs sont fabriqués.

Les principales méthodes nécessiteront que vous utilisiez les outils et matériaux suivants, qu'il vaut mieux préparer à l'avance :
- coins métalliques. Pour ce faire, vous pouvez utiliser des plaques à angle droit classiques.
- Support de support de poignée. Il peut être rendu mobile pour un changement de position libre. Il doit également être en métal durable pouvant supporter le poids de l'écran.
- Panneau en bois à partir d'un panneau solide ou d'un aggloméré, d'un panneau de fibres de bois, d'un aggloméré. Il est utilisé pour une fixation plus fiable du corps de l'équipement sur le support.
- Supports muraux spéciaux.
- Goujons, boulons, vis.
- Perceuse.
- Perforateur.
- Perceuses pour bois et métal.
Il est également important de calculer les dimensions de l'emplacement et la conception prévue. Dans le cas où le support est mobile, il convient également d'envisager un lieu pour sa libre circulation.
Recommandations
Dans le processus, quelques conseils utiles peuvent être utiles :
- il est recommandé de respecter strictement toutes les dimensions dans les dessins préparés, sinon même un écart insignifiant ne permettra pas de réaliser une construction de haute qualité;
- assurez-vous de prendre en compte le poids de l'équipement qui se tiendra sur le rack;
- pas besoin de se précipiter pour couper le matériau préparé, une telle opération doit être effectuée avec soin en utilisant une nouvelle lime pour une coupe plus idéale;
- pour la fabrication de racks, vous devez essayer de choisir un matériau de haute qualité;
- il est conseillé d'acheter des accessoires qui ne sont pas bon marché afin de ne pas gâcher l'apparence du produit fini;
- si la conception prévoit des pièces de guidage, vous devez choisir des options de billes silencieuses.


Ayant une imagination riche et de la persévérance, il est tout à fait possible de construire un design beau et pratique pour un téléviseur.
Apprenez à fabriquer un meuble TV ci-dessous.
Options de conception maison : principes généraux
En fonction de la distance entre votre récepteur TV et l'antenne émettrice du centre TV, le niveau du signal changera. Un autre facteur négatif affectant la qualité de propagation des ondes de télévision est la présence d'obstacles. La réception idéale se produit avec une ligne de mire entre les deux antennes. Autrement dit, vous pouvez voir le mât du centre de télévision, même avec des jumelles. S'il y a des bâtiments ou de grands arbres sur le chemin du signal TV, il n'y aura pas de réception fiable. Cependant, les ondes réfléchies par d'autres objets peuvent être reçues à l'aide d'un amplificateur d'antenne TV. Si même des vagues faibles ne "passent" pas du tout dans votre maison, vous devrez fabriquer un mât. Le réseau de stations de télévision et de radio est situé de manière à ce que vous puissiez capter un signal dans n'importe quelle localité.
- Antenne intérieure.Fonctionne sans amplificateur à proximité relative du mât de transmission. Si un centre de télévision est visible depuis votre fenêtre, certaines des chaînes peuvent être prises littéralement sur un morceau de fil. Comment fabriquer une antenne TV de vos propres mains, voir l'illustration. La qualité de fabrication dans de telles conditions n'affecte que la composante esthétique. Mais si vous vivez au 1-3 étage, et même entouré de cases en béton d'un microdistrict résidentiel, une conception simple ne fonctionnera pas. Une antenne intérieure, en particulier une antenne de bricolage, nécessitera un amplificateur de signal.
L'avantage de cette conception est qu'il n'y a pas besoin de protection contre les intempéries.
- Une antenne TV extérieure peut ressembler exactement à une antenne intérieure. Dans ce cas, une condition préalable est une résistance élevée (pour que le vent ne modifie pas la géométrie) et une protection du groupe de contact contre la corrosion. Il est généralement situé à proximité immédiate de la fenêtre (dans les immeubles de grande hauteur) ou sur le toit d'une maison privée. Le câble de connexion est relativement court, de sorte qu'un amplificateur n'est pas nécessaire pour une réception fiable du signal numérique ou analogique. À l'exception du cas où le centre de transmission est éloigné, la conception est disponible pour l'entretien et la réparation, c'est un avantage indiscutable du placement à proximité.
- Antenne extérieure pour TV longue portée. En règle générale, il s'agit d'une conception plutôt volumineuse avec un écran et des éléments supplémentaires qui amplifient un signal faible. Un amplificateur électronique est le bienvenu, mais avec une conception bien exécutée, il peut ne pas être nécessaire. A moins de compenser un long câble (il y aura forcément des pertes).De tels dispositifs sont montés sur les toits d'immeubles de grande hauteur ou sur des mâts chez des particuliers.La fixation doit être solide, sinon le vent peut facilement détruire la structure.
- Le type d'antenne est sélectionné en fonction des caractéristiques de la réception et de la charge de vent dans la région. Par exemple, l'antenne Kharchenko (l'option maison la plus populaire) ne devrait pas avoir une dérive élevée. Il peut être nécessaire de choisir un autre projet plus complexe.
Ensuite, considérons des exemples de fabrication d'antennes à la maison en utilisant des matériaux improvisés, du plus simple au plus complexe.
"Huit", elle est un losange, elle est aussi en forme de "Z"

Peut-être le design le plus populaire pour les bricoleurs. Cette antenne Kharchenko assez puissante reçoit en toute confiance les fréquences métriques et décimétriques au format analogique et numérique. Lorsque la question se pose: "Comment fabriquer une antenne de ses propres mains?", Cette option est d'abord assumée.
Quel est son avantage ? Avec des dimensions compactes, dans la plupart des cas, aucun amplificateur n'est nécessaire. À moins que vous ne souhaitiez recevoir un signal aux étages 1 à 3 dans un microdistrict densément bâti, où des dizaines d'immeubles de grande hauteur sont situés entre vous et le centre de télévision.
Comment fabriquer une antenne maison sans calculs complexes ? Pour une grille de diffusion typique, il existe une taille d'épaulement de base en losange : 140 mm. Distance entre les points de connexion des fils : 10–15 mm.

L'antenne Kharchenko avec de telles dimensions se situe juste au milieu d'une plage de diffusion typique. Si vous avez besoin de capter d'autres canaux (dans certaines régions, la grille peut fonctionner à des fréquences non standard), vous pouvez créer une structure filaire en plusieurs rangées.L'illustration montre un dessin du magazine "Radio" il y a 50 ans.

Ensuite, la gamme de mètres a été acceptée et les antennes avaient des dimensions gigantesques correspondantes. Ils étaient faits de fil pour réduire le vent. Cette technique de fabrication demande de la patience et une grande quantité de matière. Le "fait maison" moderne préfère un tube en cuivre ou une plaque en aluminium.

Pour fabriquer une antenne intérieure utilisant cette technologie, un morceau de fil suffit. L'appareil est suspendu dans une ouverture de fenêtre (en direction du centre TV) et il n'y a pas lieu de s'inquiéter qu'il soit soufflé par le vent. Vous pouvez fabriquer plusieurs diamants, tandis que la plage de réception sera considérablement élargie. Une option idéale pour la télévision numérique, que vous pouvez faire de vos propres mains à la campagne ou dans une maison privée.

support

Peu importe à quel point nous le voulons, mais à genoux, nous ne pourrons pas fabriquer un support mobile à partir de zéro de nos propres mains, car il contient de nombreuses pièces mobiles. Fixe est une question complètement différente. Il peut s'agir d'une structure fixée au mur avec des vis. Ces trous de fixation sont conçus par le fabricant pour une charge assez importante, ils résisteront donc au téléviseur. Voici l'option de montage mural la plus simple offerte par cet oncle coloré.
Par conséquent, il n'y a pas de problèmes. L'essentiel est de choisir le bon endroit, et ce que sera le support dépend de la superficie de la pièce et du modèle.

Montrez votre imagination, regardez moins d'émissions de télévision et respirez l'air frais.
Types de supports
Un point important lors de la création d'une monture sera le choix du modèle. Selon l'objectif que vous poursuivez, vous pouvez choisir une variété d'options. Leur classification est extensive et comprend plusieurs caractéristiques.
Par type de construction :
- Pose le long du mur.
- Les options éloignées du mur à angle droit suggèrent un placement perpendiculaire du téléviseur. Pratique pour une installation au-dessus du lit.
- Partie principale fixée au mur.
- Un bouton mobile qui vous permet de changer la position de l'écran lorsque vous le tournez.
Par choix de matière :
- Arbre résistant.
- Bases en métal.
- Modèles combinés.
La classification montre que le choix est vraiment très large, cela vous permettra de sélectionner avec précision l'option appropriée. La chose la plus importante est la tâche que cet appareil doit effectuer. Tout d'abord, il doit fixer solidement l'équipement et le maintenir au mur pour une visualisation confortable. Si nécessaire, vous pouvez installer des détails supplémentaires pour la beauté et la commodité.
2 Structures de supports muraux fixes
Envisagez la possibilité de fabriquer une attache en bois. Principaux matériaux :
- deux planches de bois;
- vis autotaraudeuses avec anneau;
- crochets et chevilles en plastique.
Nous prenons deux planches de bois dur, elles ont la meilleure qualité. La longueur des lattes doit dépasser de 10 à 15 centimètres la longueur de la paroi arrière du boîtier du téléviseur à écran plat. Pour s'assurer que l'écran s'incline légèrement, on prend la barre supérieure légèrement plus épaisse que la barre inférieure. Nous fixons deux vis autotaraudeuses avec un anneau au bord supérieur de chacune des planches.

À l'aide de boulons, que nous tordons dans des trous spéciaux, nous fixons les bandes sur la paroi arrière du téléviseur. Une barre en haut et une en bas. Entre les anneaux, nous mesurons les distances horizontalement et verticalement et les transférons au mur. Nous obtenons des points d'attache. Nous y forons des trous, installons des chevilles avec des crochets et y suspendons le produit.
Envisagez une autre option simple pour fabriquer un support mural fixe. Nous installerons un petit produit en diagonale sur des coins en aluminium et un rayon de vélo. Des coins en acier peuvent également être pris, mais comme les charges sur la fixation sont insignifiantes et que l'acier est difficile à traiter, l'aluminium est préférable.
Principaux matériaux :
- quatre coins en aluminium ;
- un rayon de vélo de 2 mm d'épaisseur ;
- boulons, vis, chevilles en plastique.
L'emplacement d'installation du téléviseur à écran plat, la taille des chevilles et des trous sont sélectionnés individuellement, en tenant compte de sa taille. Nous fixons deux coins avec deux trous percés sur chacun au capot arrière avec des boulons. Les deux autres - sur le mur avec des vis. Pour ce faire, nous les appliquons au mur et marquons les trous pour les chevilles sur le mur avec un crayon. Les attaches sont mieux faites avec des chevilles en plastique. Pour relier les coins les uns aux autres dans la partie supérieure de chacun d'eux, nous forons un trou.

Il est souhaitable qu'une paire aille à l'intérieur de l'autre, nous réduisons donc la distance entre les coins fixés au mur de quelques millimètres à la distance entre les coins du téléviseur. Après les avoir fixés en place, nous appliquons le téléviseur au mur. Nous exposons les trous percés dans le plan latéral supérieur de chaque coin sur une ligne et enfilons une aiguille à tricoter pour vélo à travers eux.

Le rayon maintient le produit dans un plan vertical et les coins insérés les uns dans les autres empêchent son déplacement involontaire dans le plan horizontal. Si le téléviseur doit être retiré du mur, nous retirons le rayon et la connexion est désengagée.
Malgré son petit diamètre, le rayon de vélo traité thermiquement peut facilement supporter le poids de modèles plus petits.Mais pour les plus lourds, des goujons de plus gros diamètre sont nécessaires !
Types de supports
Support pour Samsung, LG ou tout autre téléviseur, vous devez choisir en fonction de vos besoins. Il peut être de différentes conceptions.
- Fixé. Vous permet de fixer solidement l'appareil, mais sans possibilité de rotation ou d'inclinaison. Ce support TV a un minimum de trous et est facile à installer.
Incliné. Souvent utilisé lors du montage d'un téléviseur au-dessus du niveau des yeux. Pour assurer une visualisation confortable de la télévision, le support vous permet d'incliner le panneau à l'angle souhaité.
Inclinable-pivotant. Ce support est très pratique si vous envisagez de monter le téléviseur au mur sous le plafond. Grâce au mécanisme rotatif, il est possible de regarder la télévision de n'importe où dans la pièce.
















































